Trilocale in Vendita a Sasso Marconi, 175'000€, 73 m²

Locali: 3
Bagni: 1
Camere: 2
Piano: 1°
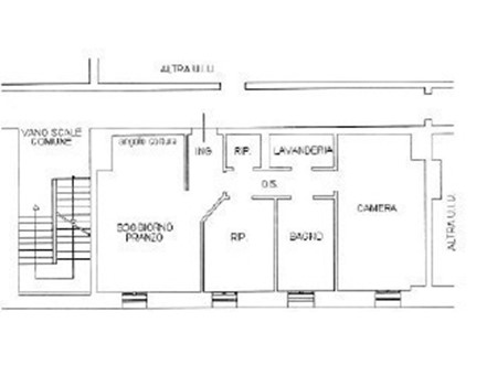
Pontecchio Marconi, proponiamo appartamento di recente costruzione composto da ingresso su soggiorno con angolo cottura, disimpegno, due camere, bagno e due utilissimi vani ad uso lavanderia e ripostiglio. La proprietà si completa con il posto auto scoperto in proprietà esclusiva. Riscaldamento autonomo, cl en D Ep 98,50 Rif A1529JW.03 ?175.000,00

Condizioni economiche

Contratto: Vendita
Prezzo: 175'000€
Arredato: No
Spese condominiali: 40€

Informazioni principali

Tipologia: Trilocale
Città: Sasso Marconi
Superficie: 73 m²
N° locali: 3
N° bagni: 1
N° Camere: 2
Piano:
Box: Singolo
Cucina: Angolo Cottura
Giardino: Comune

Efficenza energetica

Classe energetica: D
Ipe: 0.00 kwm2
Anno di costruzione: 2006
Riscaldamento: autonomo

Caratteristiche

Videocitofono: Si

Dati inserzione

ID Offrocasa.com: 10956840
Data inserimento: 16/01/2026
Rif. Agenzia: A1529JW.03VRG
Rif. Agenzia A1529JW.03VRG

Gabetti

via Porrettana 373 - Sasso Marconi (Bologna)
051/846050
Richiedi Info dal form:
Accetto l'Informativa Privacy


Condividi

Gabetti

via Porrettana 373 - Sasso Marconi (Bologna)

Trilocale in Vendita a Sasso Marconi, 175'000€, 73 m²

Chiama
Contatta