Appartamenti in Vendita Sasso Marconi (16 annunci)

Migliora Ricerca
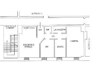
390'000€
128 m²

Locali 5

Bagni 2

Camere 3

Proponiamo un appartamento nel cuore di Sasso Marconi, situato al secondo piano di un contesto residenziale tranquillo e ben curato. L'immobile, completamente ristrutturato con finiture moderne e di qualità, si distingue per gli spazi ampi, la luminosità e la funzionale distribuzione interna. L'ingresso conduce a un grande living, accogliente e luminoso, ideale per momenti di relax e convivialità...

Vedi Annuncio
Appartamento in Vendita a Sasso Marconi, 390'000€, 128 m², arredato, con Box
1 / 25
270'000€
107 m²

Locali 4

Bagni 2

Camere 2

Proponiamo in vendita un elegante immobile situato in Via della Pace 2, a Sasso Marconi, inserito in un contesto signorile e circondato dal verde, ideale per chi desidera tranquillità senza rinunciare alla comodità dei servizi. L'appartamento, posto al secondo piano, si distingue per gli spazi ben distribuiti e la luminosità degli ambienti. L'ingresso conduce a un ampio salone, caratterizzato da u...

Vedi Annuncio
Quadrilocale in Vendita a Sasso Marconi, 270'000€, 107 m², con Box
1 / 21
265'000€
90 m²

Locali 4

Bagni 1

Camere 2

Sasso Marconi centro, in zona verde e riservata proponiamo appartamento completamente ristrutturato e composto da ingresso, ampio soggiorno con sfogo sul terrazzo di 12 mq, cucina abitabile, disimpegno notte con ripostiglio, due camere matrimoniali, balcone e bagno. Completano la proprietà la cantina, l'autorimessa doppia e la tavernetta con ingresso indipendente. Cl En in fase di rinnovo. Rif A1...

Vedi Annuncio
Quadrilocale in Vendita a Sasso Marconi, 265'000€, 90 m², arredato, con Box
1 / 25
298'000€
114 m²

Camere 2

In zona centrale a Sasso Marconi, ma immerso nel verde e nella quiete, proponiamo appartamento all’ultimo piano, silenzioso e luminoso. Il soggiorno ampio e accogliente, con camino, è il vero cuore della casa: uno spazio da vivere in ogni stagione, reso ancora più speciale dalle due porte-finestre che conducono al terrazzo, ideale per momenti di relax all’aperto. La zona notte è composta da due...

Vedi Annuncio
Appartamento in Vendita a Sasso Marconi, 298'000€, 114 m²
1 / 10
260'000€
98 m²

Locali 4

Bagni 2

Camere 2

Sasso Marconi - Via del Lavoro 2 In zona comoda ai servizi, proponiamo in vendita appartamento ben distribuito e luminoso, ideale per famiglie o per chi cerca spazi ampi e funzionali. L'immobile sito al quarto piano con ascensore é composto: da zona giorno accogliente con accesso a balcone, cucina abitabile con ulteriore accesso diretto al balcone,due camere matrimoniali e due bagni Completano ...

Vedi Annuncio
Quadrilocale in Vendita a Sasso Marconi, 260'000€, 98 m², con Box
1 / 25
210'000€
95 m²

Locali 4

Bagni 1

Camere 2

Pontecchio Marconi In palazzina completamente ristrutturata con l'ecobonus 110% dotata di cappotto esterno termico e pannelli fotovoltaici; proponiamo in vendita appartamento trilocale composto da sala con cucinotto, due camere da letto matrimoniali, un bagno, ripostiglio/lavanderia e balcone. Completano la proprietà una cantina e il posto auto. Basse spese condominiali. Volendo possibilità d'acqu...

Vedi Annuncio
Quadrilocale in Vendita a Sasso Marconi, 210'000€, 95 m², arredato
1 / 14
215'000€
95 m²

Locali 4

Bagni 1

Camere 2

Pontecchio Marconi In palazzina completamente ristrutturata con l'ecobonus 110% dotata di cappotto esterno termico e pannelli fotovoltaici; proponiamo in vendita appartamento trilocale composto da sala con cucinotto, due camere da letto matrimoniali, un bagno, ripostiglio/lavanderia e balcone. Completano la proprietà una cantina e il posto auto. Basse spese condominiali. Volendo possibilità d'acqu...

Vedi Annuncio
Quadrilocale in Vendita a Sasso Marconi, 215'000€, 95 m², arredato
1 / 17
235'000€
127 m²

Locali 5

Bagni 2

VENDESI NUDA PROPRIETA' - VALORE IMMOBILIARE DECURTATO DEL 10% COME DA TABELLE 2026 Trattasi di appartamento al secondo piano di una palazzina residenziale la cui costruzione risale indicativamente agli anni 60'. Lo stabile si presenta in buone condizioni grazie a lavori di ordinaria manutenzione eseguiti nel tempo. L'alloggio è composto da ampio ingresso, soggiorno con camino ed accesso ad un pri...

Vedi Annuncio
Appartamento in Vendita a Sasso Marconi, 235'000€, 127 m²
1 / 18
140'000€
70 m²

Locali 3

Bagni 1

Camere 2

Sasso Marconi (Località Lagune) A pochi km da Sassi Marconi, in posizione panoramica, proponiamo in vendita appartamento sito al piano terra con ingresso indipendente in palazzina di recente ristrutturazione L'immobile è composto da ingresso sulla sala con cucina a vista , camera matrimoniale , camera singola , bagno e corte privata. Riscaldamento autonomo e esigue spese condominiali. Completa ...

Vedi Annuncio
Trilocale in Vendita a Sasso Marconi, 140'000€, 70 m²
1 / 16
205'000€
90 m²

Locali 4

Bagni 1

Camere 2

Sasso Marconi In posizione centrale proponiamo in vendita in stabile completamente restaurato con il 110% appartamento sito al quarto piano. L'immobile è composto da: ampia sala con cucina a vista, due camere da letto matrimoniale, bagno, balcone e due ampi rispostigli. Completa la proprietà la cantina e il posto auto. RIF A1561W in vendita ad ?205.000

Vedi Annuncio
Quadrilocale in Vendita a Sasso Marconi, 205'000€, 90 m², arredato
1 / 18