Trilocale in Vendita a Sasso Marconi, 180'000€, 73 m²

Locali: 3
Bagni: 1
Camere: 2
Piano: 1°
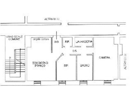
Pontecchio Marconi, proponiamo appartamento di recente costruzione composto da ingresso su soggiorno con angolo cottura, disimpegno, due camere, bagno e due utilissimi vani ad uso lavanderia e ripostiglio. La proprietà si completa con il posto auto scoperto in proprietà esclusiva. Riscaldamento autonomo, cl en D Ep 98,50 Rif A1429JW.02 ?180.00,00

Condizioni economiche

Contratto: Vendita
Prezzo: 180'000€
Arredato: No
Spese condominiali: 40€

Informazioni principali

Tipologia: Trilocale
Città: Sasso Marconi
Superficie: 73 m²
N° locali: 3
N° bagni: 1
N° Camere: 2
Piano:
Posto auto: Si
Cucina: Angolo Cottura
Giardino: Comune

Efficenza energetica

Classe energetica: 2015-D
Ipe: 98.50 kwm2
Anno di costruzione: 2006
Riscaldamento: autonomo

Caratteristiche

Videocitofono: Si

Dati inserzione

ID Offrocasa.com: 10889726
Data inserimento: 08/10/2025
Rif. Agenzia: A1429JW.02VRG
Rif. Agenzia A1429JW.02VRG

Gabetti

via Porrettana 373 - Sasso Marconi (Bologna)
051/846050
Richiedi Info dal form:
Accetto l'Informativa Privacy


Gabetti

via Porrettana 373 - Sasso Marconi (Bologna)

Trilocale in Vendita a Sasso Marconi, 180'000€, 73 m²

Chiama
Contatta