Casa Indipendente in Vendita a Toirano, 181'700€, 155 m²

Locali: 6
Camere: 3
Piano: t
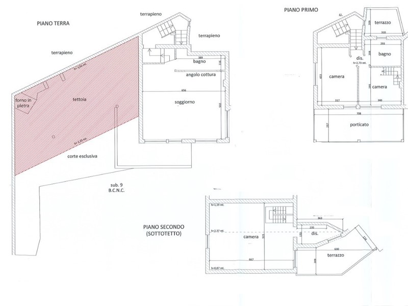
Villa trifamiliare composta da: piano terra con soggiorno, angolo cottura e bagno; primo piano con disimpegno, 2 camere, bagno terrazzo e porticato; piano secondo con camera, disimpegno e bagno. - Il Prezzo visualizzato è la Base d'Asta in quanto l’immobile è oggetto di esecuzione immobiliare venduto tramite Asta Giudiziaria. - L'immobile aggiudicato, viene venduto libero e sgombro da persone cose ed ipoteche nello stato di fatto e di diritto in cui si trova. - Non rappresentiamo il Tribunale, ma lavoriamo nell'esclusivo interesse del potenziale acquirente per garantire un acquisto sicuro. - I consulenti di ASTE ITALIA ti assisteranno in tutte le attività dell'iter giudiziario dalla visita dell'immobile fino alla consegna chiavi. - Contatta il nostro Servizio Clienti , i nostri operatori sono a disposizione per chiarire i molteplici dubbi per partecipare alle ASTE.

Condizioni economiche

Contratto: Vendita
Prezzo: 181'700€
Arredato: No

Informazioni principali

Tipologia: Casa Indipendente
Città: Toirano
Superficie: 155 m²
N° locali: 6
N° Camere: 3
Piano: t
Cucina: Angolo cottura
Giardino: Si

Efficenza energetica

Classe energetica: G
Anno di costruzione: 0
Condizioni stabile: Discreto
Riscaldamento: Autonomo

Dati inserzione

ID Offrocasa.com: 10880282
Data inserimento: 26/09/2025
Rif. Agenzia: SV21/24LU-1112-25-1045
Rif. Agenzia SV21/24LU-1112-25-1045

ASTE ITALIA

Via Serra 6 Int 7 - Genova (GE)
010.8935240
Richiedi Info dal form:
Accetto l'Informativa Privacy


ASTE ITALIA

Via Serra 6 Int 7 - Genova (GE)

Casa Indipendente in Vendita a Toirano, 181'700€, 155 m²

Chiama
Contatta