Appartamento in Vendita a Toirano, 265'000€ 265'000€ 130 m² Locali 5 Bagni 1 Camere 2 A Toirano, 2,5 km dal mare, si trova l'appartamento su due livelli che promette di trasformare la tua idea di casa in una realtà luminosa e accogliente. Immagina un luogo dove il sole, da sud-ovest a nord, accarezza le stanze durante tutto l'arco della giornata, creando un'atmosfera calda e invitante che ti accoglie ogni volta che varchi la soglia. Ingresso indipendente dal terrazzo. La cucina, u... Vedi Annuncio 1 / 31
Bilocale in Vendita a Toirano, 95'000€ 95'000€ 60 m² Locali 2 Bagni 1 Camere 1 L'agenzia LOACASA propone in vendita a Toirano, zona palazzetto dello sport, in piccolo condominio, proponiamo al secondo ed ultimo piano mansardato ampio bilocale composto da ingresso su soggiorno con angolo cottura, camera da letto, bagno appena ristrutturato e ripostigli. No balconi. Luminoso con scorcio di vista mare. Termo autonomo. Minime spese condominiali. Ideale per casa vacanze o prima c... Vedi Annuncio 1 / 8
Bilocale in Vendita a Toirano, 180'000€ 180'000€ 50 m² Locali 2 Bagni 1 Camere 1 Rif. 17 Bilocale Toirano Bilocale di ampia metratura finemente ristrutturato e mai vissuto, arredamento a nuovo semplice e moderno, l'immobile posto al piano secondo ed ultimo di una piccola palazzina si compone da: ingresso su soggiorno living con angolo cottura a vista, camera matrimoniale, bagno con finestra, ripostiglio, 2 ampi balconi con vista aperta, box di circa mq. 20 + posto auto, risc... Vedi Annuncio 1 / 11
Casa Indipendente in Vendita a Toirano, 695'000€ 695'000€ 180 m² Locali 7 Camere 2 SPLENDIDA VILLA CON PISCINA E VISTA MARE PANORAMICA. Cerchi una soluzione abitativa che offra ampi spazi sia interni che esterni, garantendo al contempo privacy e una vista mozzafiato? Abbiamo la proposta perfetta per te! Caratteristiche Principali Questa splendida villa offre comfort e lusso ineguagliabili. La proprietà si distingue per una serie di caratteristiche uniche: - Ampia Terrazza co... Vedi Annuncio 1 / 10
Casa Indipendente in Vendita a Toirano, 250'000€ 250'000€ 99 m² Locali 3 Bagni 1 Camere 1 Immerso nel fascino del centro storico di Toirano, sorge questo elegante terracielo di 4 piani, pronto a conquistare gli occhi e i cuori degli amanti del lusso e del comfort. L'immobile, frutto di un sapiente restauro, si estende su una superficie totale di oltre 100 metri quadri e dispone di 3 locali, 1 camera da letto e 1 bagno, offrendo così un'atmosfera intima e accogliente. Ogni dettaglio di ... Vedi Annuncio 1 / 27
Immobile commerciale in Vendita a Toirano, 595'000€ 595'000€ 7500 m² Locali 1 Nella rinomata località di Toirano, a pochi passi dalle grotte e dall'uscita autostradale, proponiamo un Camping di 7500 mq. La proprietà è attualmente identificata ancora come Area camper, ma sia il progetto approvato che gli oneri pagati lo identificano a tutti gli effetti già come Campeggio. (Licenza documentata). Il camping prevede 51 piazzole, tutte con allaccio alle colonnine di corrente e q... Vedi Annuncio 1 / 18
Quadrilocale in Vendita a Toirano, 74'990€ 74'990€ 54 m² Locali 4 Camere 1 Appartamento interno 2 al piano primo con accesso indipendente tramite scala esterna e ampio terrazzo verandato composto da soggiorno con angolo cottura, camera da letto, bagno e due balconi per mq. 50 circa, con annesso box singolo n. 4 al piano seminterrato di mq. 16 circa. - Il Prezzo visualizzato è la Base d'Asta in quanto l’immobile è oggetto di esecuzione immobiliare venduto tramite Asta ... Vedi Annuncio 1 / 8
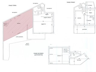
Casa Indipendente in Vendita a Toirano, 181'700€ 181'700€ 155 m² Locali 6 Camere 3 Villa trifamiliare composta da: piano terra con soggiorno, angolo cottura e bagno; primo piano con disimpegno, 2 camere, bagno terrazzo e porticato; piano secondo con camera, disimpegno e bagno. - Il Prezzo visualizzato è la Base d'Asta in quanto l’immobile è oggetto di esecuzione immobiliare venduto tramite Asta Giudiziaria. - L'immobile aggiudicato, viene venduto libero e sgombro da persone... Vedi Annuncio 1 / 7