Case in vendita Gozzano

Migliora Ricerca
1'039'500€
7700 m²

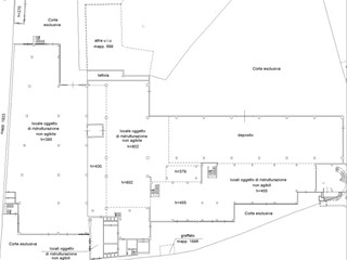
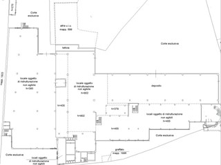
Piena Proprietà di un compendio immobiliare ad uso opificio (industriale) che si sviluppa su 2 livelli piano terra e piano primo collegati tra loro con scale interne ed esterne, della superficie lorda di Mq. 7.700 con annesse aree pertinenziali corti esclusive e terreni esterni adibiti a parcheggio.Agli immobili si accede da strade comunali. - Il Prezzo visualizzato è la Base d'Asta in quanto l...

Vedi Annuncio
Capannone in Vendita a Gozzano, 1'039'500€, 7700 m²
1 / 6
< 1 2 >