Capannone in Vendita a Gozzano, 1'039'500€, 7700 m²

Piano: t
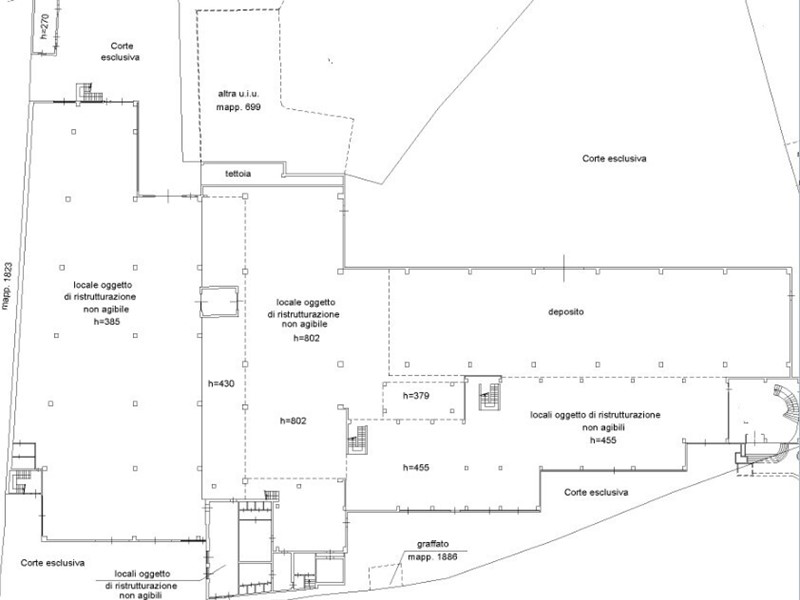
Piena Proprietà di un compendio immobiliare ad uso opificio (industriale) che si sviluppa su 2 livelli piano terra e piano primo collegati tra loro con scale interne ed esterne, della superficie lorda di Mq. 7.700 con annesse aree pertinenziali corti esclusive e terreni esterni adibiti a parcheggio.Agli immobili si accede da strade comunali. - Il Prezzo visualizzato è la Base d'Asta in quanto l’immobile è oggetto di esecuzione immobiliare venduto tramite Asta Giudiziaria. - L'immobile aggiudicato, viene venduto libero e sgombro da persone cose ed ipoteche nello stato di fatto e di diritto in cui si trova. - Non rappresentiamo il Tribunale, ma lavoriamo nell'esclusivo interesse del potenziale acquirente per garantire un acquisto sicuro. - I consulenti di ASTE ITALIA ti assisteranno in tutte le attività dell'iter giudiziario dalla visita dell'immobile fino alla consegna chiavi. - Contatta il nostro Servizio Clienti , i nostri operatori sono a disposizione per chiarire i molteplici dubbi per partecipare alle ASTE.

Condizioni economiche

Contratto: Vendita
Prezzo: 1'039'500€
Arredato: No

Informazioni principali

Tipologia: Capannone
Città: Gozzano
Superficie: 7700 m²
Piano: t

Efficenza energetica

Classe energetica: G
Anno di costruzione: 0
Condizioni stabile: Discreto

Dati inserzione

ID Offrocasa.com: 10939694
Data inserimento: 12/12/2025
Rif. Agenzia: NO14/23LU-1112-25-1600
Rif. Agenzia NO14/23LU-1112-25-1600

Domy Online S.r.l.

Via San Lorenzo 5/41 - Genova
010.8935187
Richiedi Info dal form:
Accetto l'Informativa Privacy


Domy Online S.r.l.

Via San Lorenzo 5/41 - Genova

Capannone in Vendita a Gozzano, 1'039'500€, 7700 m²

Chiama
Contatta