Case in vendita Genova

Migliora Ricerca
34'275€
62 m²

Locali 6

Camere 2

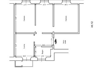
Piena proprietà di appartamento ad uso abitativo ubicato a Genova (GE), zona Sestri Ponente, Via Puccini, edificio 13, interno 10, posto al piano 4 di un edificio di 6 piani fuori terra, senza ascensore, composto da un ingresso, un soggiorno, una cucina, due camere, un servizio igienico, un poggiolo chiuso da una veranda in vetro e alluminio. La struttura principale del fabbricato è prevalentement...

Vedi Annuncio
Appartamento in Vendita a Genova, zona Sestri Ponente, 34'275€, 62 m²
1 / 7
23'344€
115 m²

Locali 6

Camere 3

Appartamento sito in Genova, Via Paolo Anfossi 68B/1, posto al piano terra, della consistenza di 6 vani catastali, composto da ingresso, 3 camere, cucinino, bagno, un giardinetto esterno ed un ripostiglio con accesso separato dall’esterno. - Il Prezzo visualizzato è la Base d'Asta in quanto l’immobile è oggetto di esecuzione immobiliare venduto tramite Asta Giudiziaria. - L'immobile aggiudicat...

Vedi Annuncio
Appartamento in Vendita a Genova, 23'344€, 115 m²
1 / 6
56'590€
153 m²

Locali 9

Camere 3

Appartamento in Genova, Via Pino di Murta 9, posto ai piani primo e terra, con terreno di pertinenza. Al piano terra si trovano ingresso, soggiorno, cucina, cantina e ripostiglio mentre, al piano primo, si trovano tre camere da letto ed un servizio igienico. Risultano far parte dell’’unità due lavatoi e un capanno insistenti sul terreno di pertinenza. - Il Prezzo visualizzato è la Base d'Asta i...

Vedi Annuncio
Appartamento in Vendita a Genova, zona Bolzaneto, 56'590€, 153 m²
1 / 9
36'225€
64 m²

Locali 4

Camere 2

Appartamento ubicato in Genova, Via Monfenera9b int. 1 e cantina. Unità immobiliare ubicata al piano seminterrato. Le caratteristiche interne dell'alloggio risultano essere di sufficiente fattura, con finiture di tipo comune. - Il Prezzo visualizzato è la Base d'Asta in quanto l’immobile è oggetto di esecuzione immobiliare venduto tramite Asta Giudiziaria. - L'immobile aggiudicato, viene vendu...

Vedi Annuncio
Quadrilocale in Vendita a Genova, 36'225€, 64 m²
1 / 6
66'947€
114 m²

Locali 7

Camere 3

Piena proprietà per quota 1/1 di appartamento ubicato a Genova (GE), in via Molteni civico 7, interno 7, piano terzo con ascensore, vani 6,5, della superficie lorda catastale di 113 mq, costituito da ingresso affacciato su cavedio, quattro ampie camere, cucina abitabile, un bagno, un piccolo ripostiglio e due poggioli. - Il Prezzo visualizzato è la Base d'Asta in quanto l’immobile è oggetto di ...

Vedi Annuncio
Appartamento in Vendita a Genova, zona Sampierdarena, 66'947€, 114 m²
1 / 8
45'000€
98 m²

Locali 6

Camere 2

Appartamento di tipo popolare ubicato a Genova (GE) - Via Elio Modigliani, edificio 19, interno 6, piano 6 con cantina di pertinenza. - Il Prezzo visualizzato è la Base d'Asta in quanto l’immobile è oggetto di esecuzione immobiliare venduto tramite Asta Giudiziaria. - L'immobile aggiudicato, viene venduto libero e sgombro da persone cose ed ipoteche nello stato di fatto e di diritto in cui si ...

Vedi Annuncio
Appartamento in Vendita a Genova, 45'000€, 98 m²
1 / 8
60'000€
102 m²

Locali 6

Camere 3

Appartamento ubicato a Genova, Via Sparta civico 34, interno 14, piano terzoPiena proprietà di un appartamento situato nel quartiere di Sestri Ponente, di circa 102 mq di superficie, si trova al terzo piano ed è composto da ingresso, spaziosa cucina, tre camere, bagno, ripostiglio e balcone. - Il Prezzo visualizzato è la Base d'Asta in quanto l’immobile è oggetto di esecuzione immobiliare vend...

Vedi Annuncio
Appartamento in Vendita a Genova, zona Sestri Ponente, 60'000€, 102 m²
1 / 9
34'840€
93 m²

Locali 6

Camere 2

Appartamento ubicato a Genova (Ge) Via BEZZECCA 3/8, edificio 3,interno 8, piano 4. L'immobile é costituito da un locale ingresso, nr. 2 camere, un bagno, un disimpegno, un ripostiglio, un soggiorno ed una cucina, é dotata di nr. 3 balconi. - Il Prezzo visualizzato è la Base d'Asta in quanto l’immobile è oggetto di esecuzione immobiliare venduto tramite Asta Giudiziaria. - L'immobile aggiudica...

Vedi Annuncio
Appartamento in Vendita a Genova, zona Sampierdarena, 34'840€, 93 m²
1 / 7
76'376€
106 m²

Locali 6

Camere 2

Piena proprietà di appartamento in via Sant'Elia 104-2, con superficie netta di 82mq (106mq catastali) composto da ingresso, soggiorno, due camere, cucina, bagno, nonché di un terrazzo con superficie netta di 22mq. Nel lotto è compresa il box pertinenziale di 24mq, sito in via Antonio Sant’Elia 82-96 distinto con il numero 13, molto luminoso e dotato di una parte soppalcata ad uso sgombero, con ac...

Vedi Annuncio
Appartamento in Vendita a Genova, zona Sestri Ponente, 76'376€, 106 m², con Box
1 / 7
20'548€
52 m²

Locali 4

Camere 1

Piena proprietà di un piccolo appartamento situato in un contesto rurale, avente accesso da tipica creuza pedonale, composto da ingresso sul soggiorno, una camera, un bagno ed una cucina. Il tutto per una superficie netta di 39 mq. - Il Prezzo visualizzato è la Base d'Asta in quanto l’immobile è oggetto di esecuzione immobiliare venduto tramite Asta Giudiziaria. - L'immobile aggiudicato, viene...

Vedi Annuncio
Quadrilocale in Vendita a Genova, 20'548€, 52 m²
1 / 6
< 1 ... 72 73 74 75 76 77 78 79 80 81 >