Appartamento in Vendita a Genova, zona Sestri Ponente, 34'275€, 62 m²

Locali: 6
Camere: 2
Piano: 4
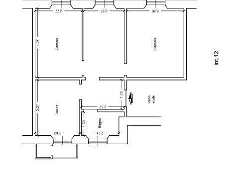
Piena proprietà di appartamento ad uso abitativo ubicato a Genova (GE), zona Sestri Ponente, Via Puccini, edificio 13, interno 10, posto al piano 4 di un edificio di 6 piani fuori terra, senza ascensore, composto da un ingresso, un soggiorno, una cucina, due camere, un servizio igienico, un poggiolo chiuso da una veranda in vetro e alluminio. La struttura principale del fabbricato è prevalentemente in pietra. L’esposizione dell’immobile è verso ovest, dove si affacciano bagno e cucina, e verso est, dove si affacciano camere e soggiorno. L’immobile non è dotato di impianto di riscaldamento. La zona ove è ubicato l’immobile è periferica, a traffico locale con parcheggi, negozi al dettaglio, servizi di urbanizzazione primaria e secondaria, autobus. - Il Prezzo visualizzato è la Base d'Asta in quanto l’immobile è oggetto di esecuzione immobiliare venduto tramite Asta Giudiziaria. - L'immobile aggiudicato, viene venduto libero e sgombro da persone cose ed ipoteche nello stato di fatto e di diritto in cui si trova. - Non rappresentiamo il Tribunale, ma lavoriamo nell'esclusivo interesse del potenziale acquirente per garantire un acquisto sicuro. - I consulenti di ASTE ITALIA ti assisteranno in tutte le attività dell'iter giudiziario dalla visita dell'immobile fino alla consegna chiavi. - Contatta il nostro Servizio Clienti , i nostri operatori sono a disposizione per chiarire i molteplici dubbi per partecipare alle ASTE.

Condizioni economiche

Contratto: Vendita
Prezzo: 34'275€
Arredato: No

Informazioni principali

Tipologia: Appartamento
Città: Genova
Zona: Sestri Ponente
Superficie: 62 m²
N° locali: 6
N° Camere: 2
Piano: 4
N° balconi: 1
Cucina: Abitabile

Efficenza energetica

Classe energetica: G
Anno di costruzione: 0
Condizioni stabile: Discreto

Dati inserzione

ID Offrocasa.com: 10944977
Data inserimento: 20/12/2025
Rif. Agenzia: GE277/24LU-2702-26-1400
Rif. Agenzia GE277/24LU-2702-26-1400

ASTE ITALIA

Via Serra 6 Int 7 - Genova (GE)
010.8935240
Richiedi Info dal form:
Accetto l'Informativa Privacy


Condividi

ASTE ITALIA

Via Serra 6 Int 7 - Genova (GE)

Appartamento in Vendita a Genova, zona Sestri Ponente, 34'275€, 62 m²

Chiama
Contatta