Immobile commerciale in Affitto a Santa Maria a Monte, 400€, 70 m²
        
    
        
    
        
    
    
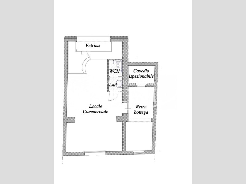
        Santa Maria a Monte - Nel caratteristico centro storico, AFFITTASI locale commerciale di circa mq 70 di recente ristrutturazione, posto al piano terra con unico ingresso da strada di paese, internamente composto da ingresso, vano principale fronte strada di circa mq 50 con vetrina da esposizione, antibagno e bagno, oltre a secondo vano ad uso magazzino - OTTIMA SOLUZIONE PER APRIRE LA TUA ATTIVITA' NEL PARTICOLARE BORGO DI SANTA MARIA A MONTE - Classe energetica:  - Rif. S1773
	
    
    
    
        
        
            Condizioni economiche
            
                Contratto: Affitto
            
            
                Prezzo: 400€
            
            
         
        
            Informazioni principali
            
                Tipologia: Immobile commerciale
            
            
                Città: Santa Maria a Monte
            
            
                
                    Superficie: 70 m²
                
            
                
                    N° locali: 2
                
            
                
                    Piano: piano terra
                
            
                
                    Esposizione: Ottima visibilità
                
            
         
        
            Efficenza energetica
            
                Classe energetica: G
            
            
                
                    Ipe: 160,00 kwm2
                
            
                
                    Ristrutturato: si
                
            
		 
        
            
                Dati inserzione
                
                    ID Offrocasa.com: 9985538
                
                
                
                    Data inserimento: 19/01/2023
                
                
                    
                        Rif. Agenzia: 1048074/4/S1773
                    
                
             
        
	 
    
    
        
Immobile commerciale in Affitto a Santa Maria a Monte, 400€, 70 m²