Villa bifamiliare in Vendita a Alta Valle Intelvi, 80 m²

Locali: 3
Bagni: 1
Camere: 2
Piano: Su più livelli
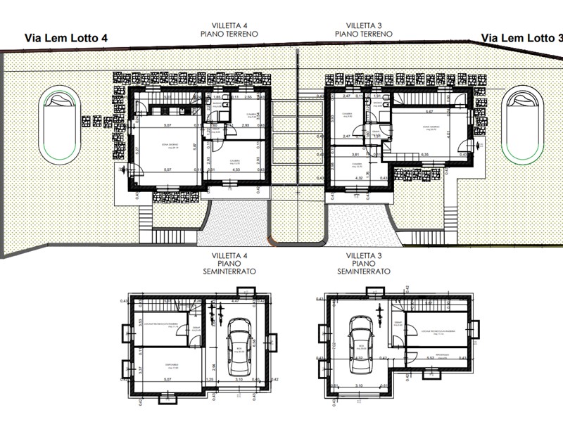
Due villette bifamiliari in costruzione con i migliori comfort abitativi: pompa di calore per acqua calda sanitaria, pannelli fotovoltaici per elettricità, riscaldamento a pavimento, coibentazione a cappotto. Le villette sono composte da un unico piano abitativo composto da zona giorno di circa con cucina a vista, 2 camere e bagno. Il piano abitativo è di 81 mq per una delle due villette, mentre per l'altra è di 73 mq. Tramite scala di collegamento interna si accede al piano seminterrato di circa 80 mq composto da box doppio e 2 locali lavanderia/ripostiglio. Giardino su 3 lati di 300 mq. Possibilità di piscina interrata a partire da ? 25.000. Zona residenziale e tranquilla in località Pellio Superiore, comoda per raggiungere il confine con la Svizzera (valico Valmara) e a 50 minuti dalla città di Como.

Condizioni economiche

Contratto: Vendita
Prezzo: Prezzo su richiesta
Arredato: No

Informazioni principali

Tipologia: Villa bifamiliare
Città: Alta Valle Intelvi
Superficie: 80 m²
N° locali: 3
N° bagni: 1
N° Camere: 2
Piano: Su più livelli
Box: Doppio
Cucina: Abitabile
Giardino: Privato

Efficenza energetica

Classe energetica: 2015-A2
Ipe: 0.70 kwm2
Anno di costruzione: 2021
Riscaldamento: autonomo

Dati inserzione

ID Offrocasa.com: 9904137
Data inserimento: 23/10/2022
Rif. Agenzia: Pellio-LEM-BIF2VRG
Rif. Agenzia Pellio-LEM-BIF2VRG

Gabetti

via Provinciale 167 - Centro Valle Intelvi (Como)
031/832544
Richiedi Info dal form:
Accetto l'Informativa Privacy


Gabetti

via Provinciale 167 - Centro Valle Intelvi (Como)

Villa bifamiliare in Vendita a Alta Valle Intelvi, 80 m²

Chiama
Contatta