Appartamento in Vendita a Venezia, zona Venezia Lido, 485'000€, 191 m²

Locali: 6
Bagni: 2
Camere: 6
Piano: Rialzato
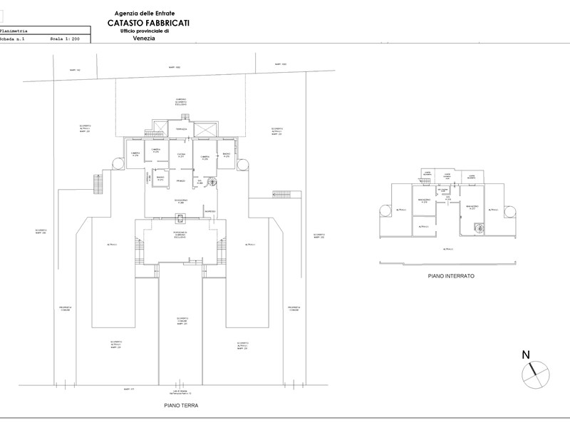
APPARTAMENTO CON DOPPIO GIARDINO A VENEZIA LIDO Vendo ampio appartamento a Venezia Lido con doppio giardino esclusivo.  L’immobile si trova in una zona molto tranquilla vicino al Tennis Club Ca' del Moro, a pochi passi dal mare, e servita da piccola area commerciale a circa 500 metri con supermercato, farmacia, tabaccheria, bar, parrucchiere e altri negozi. Superato il giardino condominiale, si accede da un primo giardino privato con barbecue e porta d’ingresso. L’interno è composto da un ampio salone con caminetto interno e doppia vetrata, cucina abitabile con porta finestra di accesso ad un secondo ampio giardino privato, camera matrimoniale con spazioso bagno interno, due camere singole servite da un secondo bagno, taverna con doppia camera, vano caldaia, con accesso diretto al garage comune. L’appartamento si presenta in buone condizioni. Libero da subito. PRIVATO

Condizioni economiche

Contratto: Vendita
Prezzo: 485'000€
Libero: Subito

Informazioni principali

Tipologia: Appartamento
Città: Venezia
Zona: Venezia Lido
Vicinanze: via parri
Superficie: 191 m²
N° locali: 6
N° bagni: 2
N° Camere: 6
Piano: Rialzato
N° balconi: 1
Cucina: Abitabile
Giardino: Si, 234mq
Esposizione: sud, est, ovest

Efficenza energetica

Classe energetica: F
Ipe: 144,70
Climatizzatore: si
Anno di costruzione: 1979
Condizioni stabile: Buone Condizioni
Riscaldamento: autonomo

Dati inserzione

ID Offrocasa.com: 9725809
Data inserimento: 01/05/2022

Simona

Richiedi Info dal form:
Accetto l'Informativa Privacy


Simona

Appartamento in Vendita a Venezia, zona Venezia Lido, 485'000€, 191 m²

Contatta