Quadrilocale in Vendita a Pescara, 115'000€, 83 m²

Locali: 4
Bagni: 1
Camere: 2
Piano: 2
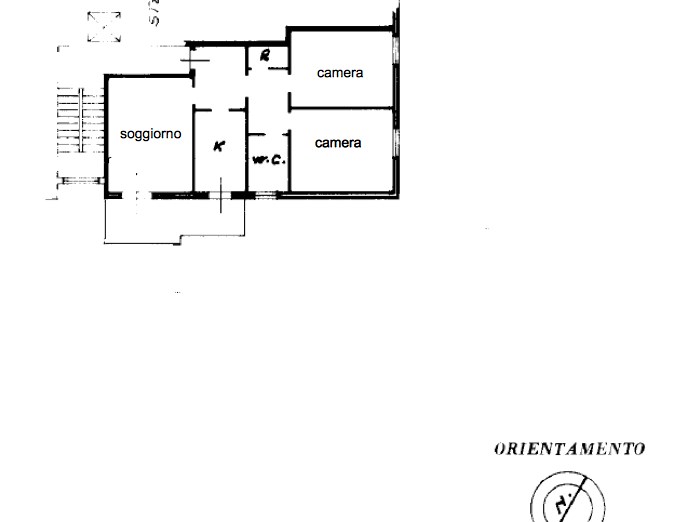
Vendesi appartamento di 83 mq ubicato in zona ben servita sia infrastrutturalmente (vicino alla rete ferroviaria, all'asse attrezzato e aeroporto), sia commercialmente (vicino ai centri commerciali) che direzionalmente (vicino al centro della città). E' situato al 2° piano di una palazzina recintata dotata di ascensore. E' stato ristrutturato da poco, gli impianti sono a norma e il riscaldamento è autonomo. L'appartamento è costituito da una cucina, un soggiorno, un bagno con doccia, un ripostiglio, due camere e un balcone, esposto verso una zona ben soleggiata; sono presenti infissi in alluminio, zanzariere, tende da sole. E' possibile acquistare, separatamente, un garage. No Agenzie Immobiliari.

Condizioni economiche

Contratto: Vendita
Prezzo: 115'000€
Arredato: semiarredato
Spese condominiali: 30€

Informazioni principali

Tipologia: Quadrilocale
Città: Pescara
Superficie: 83 m²
N° locali: 4
N° bagni: 1
N° Camere: 2
Piano: 2
N° balconi: 1
Cucina: abitabile
Giardino: no

Efficenza energetica

Classe energetica: F
Ipe: 113
Climatizzatore: no
Ristrutturato: ristrutturato
Riscaldamento: autonomo

Caratteristiche

Cantina: no
Ascensore: si

Dati inserzione

ID Offrocasa.com: 9649890
Data inserimento: 24/02/2022

mariad

Richiedi Info dal form:
Accetto l'Informativa Privacy


mariad

Quadrilocale in Vendita a Pescara, 115'000€, 83 m²

Contatta