Ufficio in Affitto a Rende, 1'000€, 180 m²

Locali: 5
Bagni: 2
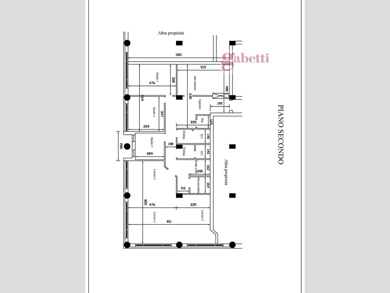
Rende, proponiamo in locazione spazioso appartamento con categoria catastale A10, posto al secondo piano di un palazzo di solo uffici. L'unità immobiliare e cosi suddivisa: ampio ingresso, 4 stanze, una sala riunioni, un ripostiglio, una sala macchine, un ambiente break-coffe e due bagni. Condizionatori caldo freddo e posto auto assegnato. Gabetti Franchising Agency. Via Carlo Bilotti 10 - 87036 Rende. Tel. 09841863870 cell. 3335861969 email rende@gabetti.it

Condizioni economiche

Contratto: Affitto
Prezzo: 1'000€
Arredato: No

Informazioni principali

Tipologia: Ufficio
Città: Rende
Superficie: 180 m²
N° locali: 5
N° bagni: 2

Efficenza energetica

Classe energetica:
Anno di costruzione: 2022
Riscaldamento: autonomo

Caratteristiche

Ascensore: Si

Dati inserzione

ID Offrocasa.com: 9597040
Data inserimento: 07/01/2022
Rif. Agenzia: cod. rif5866298AU
Rif. Agenzia cod. rif5866298AU

Gabetti

Via Carlo Bilotti 10 - Rende (Cosenza)
0984/1863870
Richiedi Info dal form:
Accetto l'Informativa Privacy


Gabetti

Via Carlo Bilotti 10 - Rende (Cosenza)

Ufficio in Affitto a Rende, 1'000€, 180 m²

Chiama
Contatta