Casa Indipendente in Vendita a Castelnuovo Magra, 250'000€, 140 m²

Locali: 6
Camere: 3
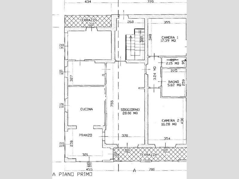
In zona residenziale vicino ai servizi, casa semindipendente costituita da piano primo di fabbricato indipendente, con ingresso da giardino esclusivo e recintato al piano terra e vano scala privato. Appartamento composto da ingresso in ampia sala con camino e uscita su terrazza, sala da pranzo, cucina abitabile, disimpegno, camera matrimoniale, bagno, camera doppia con terrazza, locale wc, altra camera con locale armadi e terrazza. Ampio spazio esterno e libera su 4 lati, solaio di proprietà esclusiva. Immobile è abitabili ma con finiture datate e necessita di ripristino della recinzione. Abitazione di circa 130 mq e giardino privato recintato di mq 250.

Condizioni economiche

Contratto: Vendita
Prezzo: 250'000€
Arredato: No

Informazioni principali

Tipologia: Casa Indipendente
Città: Castelnuovo Magra
Superficie: 140 m²
N° locali: 6
N° Camere: 3
N° balconi: 1
Posto auto: Si
Cucina: Abitabile
Giardino: Si

Efficenza energetica

Classe energetica: VA
Anno di costruzione: 0
Condizioni stabile: Buono

Dati inserzione

ID Offrocasa.com: 9583117
Data inserimento: 17/12/2021
Rif. Agenzia: 6003540
Rif. Agenzia 6003540

Immobiliare Il Sole

Viale Malaspina 1 - Fosdinovo (MS)
0187.670140
Richiedi Info dal form:
Accetto l'Informativa Privacy


Immobiliare Il Sole

Viale Malaspina 1 - Fosdinovo (MS)

Casa Indipendente in Vendita a Castelnuovo Magra, 250'000€, 140 m²

Chiama
Contatta