Casa Indipendente in Vendita a Castel di Lama, 265'000€, 145 m²

Locali: 6
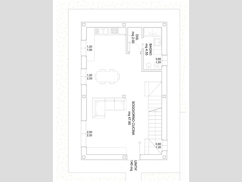
Castel di Lama - Villino di 140 mq su 2 livelli con soggiorno-cucina, 3 camere e 2 bagni. Le costruzioni saranno realizzate unicamente in bioedilizia, tenendo conto delle caratteristiche del territorio, utilizzando il legno per la struttura portante e blocchi in canapa per la tamponatura esterna. Il mattone in canapa ha contemporaneamente funzione di tamponamento, isolante termico, isolante acustico e regolazione dell'umidità interna, garantendo salute e comfort delle persone che ci abiteranno. Gli impianti utilizzano solo fonti di energia rinnovabile (fotovoltaico e solare termico). La villetta può essere progettata e realizzata in base alle specifiche esigenze del cliente variando i metri abitabili e degli spazi accessori, studiando la funzionalità degli ambienti a seconda del personale modo di vivere la casa.

Condizioni economiche

Contratto: Vendita
Prezzo: 265'000€
Arredato: No

Informazioni principali

Tipologia: Casa Indipendente
Città: Castel di Lama
Superficie: 145 m²
N° locali: 6

Efficenza energetica

Classe energetica:
Anno di costruzione: 0

Dati inserzione

ID Offrocasa.com: 9553760
Data inserimento: 18/11/2021
Rif. Agenzia: 2209
Rif. Agenzia 2209

Centro Servizi Immobiliari

Via F.Turati, 70 - San Benedetto del Tronto (AP)
392.9812597
Richiedi Info dal form:
Accetto l'Informativa Privacy


Centro Servizi Immobiliari

Via F.Turati, 70 - San Benedetto del Tronto (AP)

Casa Indipendente in Vendita a Castel di Lama, 265'000€, 145 m²

Chiama
Contatta