Terreno edificabile in Vendita a Santo Stefano di Magra, zona Zona industriale, 450'000€, 3400 m²

Locali: 1
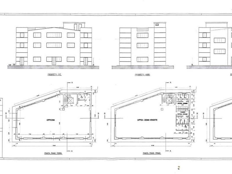
Terreno edificabile artigianale, commerciale e industriale a Santo Stefano. In vendita, vicino al centro commerciale La Fabbrica, a poche centinaia di metri dall'uscita autostradale di Santo Stefano Magra, terreno edificabile di circa 3150 mq, in fronte strada di transito pesante. Il terreno è già stato recintato, per il passaggio e la sosta di container e mezzi pesanti e consolidato adeguatamente con opere di scoticamento e inghiaiamento con stabilizzato. Il terreno in oggetto ha una portata di un carico di 100 tonnellate su sei ruote motrici. Cavidotto perimetrale e posizionamento basi per due torre fari già predisposto. Progetto approvato per edificare un capannone su tre piani per un totale di 900 mq.

Condizioni economiche

Contratto: Vendita
Prezzo: 450'000€
Arredato: No

Informazioni principali

Tipologia: Terreno edificabile
Città: Santo Stefano di Magra
Zona: Zona industriale
Superficie: 3400 m²
N° locali: 1

Efficenza energetica

Classe energetica: NA
Anno di costruzione: 0
Condizioni stabile: Buono

Dati inserzione

ID Offrocasa.com: 9552793
Data inserimento: 17/11/2021
Rif. Agenzia: TE132
Rif. Agenzia TE132

Albani Riccardo

Via Sarzana 1029 - La Spezia
0187.980780
Richiedi Info dal form:
Accetto l'Informativa Privacy


Albani Riccardo

Via Sarzana 1029 - La Spezia

Terreno edificabile in Vendita a Santo Stefano di Magra, zona Zona industriale, 450'000€, 3400 m²

Chiama
Contatta