Casa Indipendente in Vendita a Montaione, zona Mura, 265'000€, 155 m², con Box

Locali: 5
Bagni: 2
Camere: 3
Piano: su più livelli
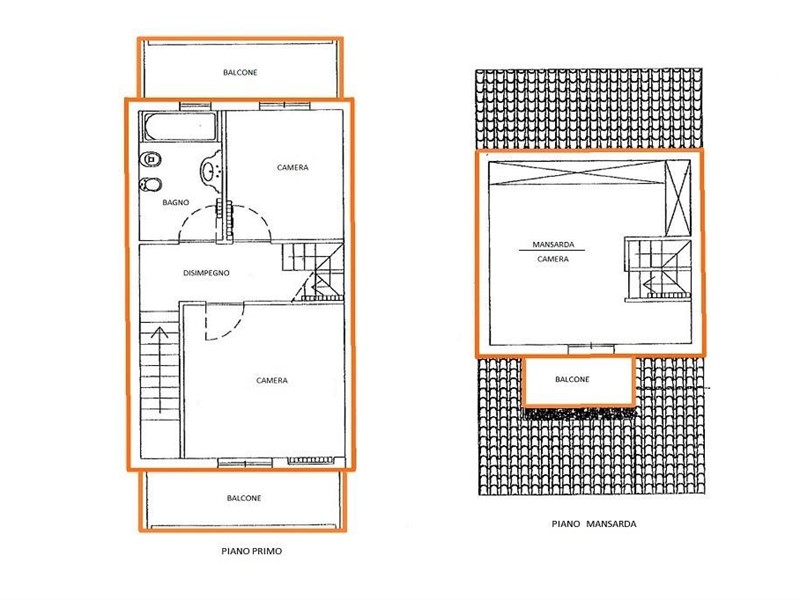
L' Agenzia Immobiliare Cinelli, propone in vendita, un bel Terratetto di recente costruzione posto in bella posizione panoramica e con finiture di ottimo livello. L'immobile è disposto su tre livelli, oltre a garage al piano seminterrato. Si accede all'appartamento tramite scala esterna esclusiva e balcone, all'interno troviamo un ampio soggiorno, cucina - pranzo, ripostiglio e piccolo giardino pavimentato sul retro. Tramite una bella scala in marmo, si accede al piano primo, tutto pavimentato in parquet, composto da due camere, entrambe con balcone, bagno; proseguendo si arriva nella mansarda, che può ospitare tranquillamente una terza camera o uno studio, anche quest'ultima, con balcone panoramico. Al piano seminterrato, con accesso sia dall'esterno attraverso rampa esclusiva che dall'interno tramite scala a chiocciola, troviamo un ampio spazio adibito in parte a garage, oltre a lavanderia, bagno con doccia e ripostiglio. Ottima soluzione per chi desidera vivere fuori dal centro, in zona panoramica, ma allo stesso tempo non isolato.

Condizioni economiche

Contratto: Vendita
Prezzo: 265'000€
Prezzo trattabile: si

Informazioni principali

Tipologia: Casa Indipendente
Città: Montaione
Zona: Mura
Superficie: 155 m²
N° locali: 5
N° bagni: 2
N° Camere: 3
Piano: su più livelli
Box: si
Posto auto: 1
Giardino: privato

Efficenza energetica

Classe energetica: In attesa di certificazione
Anno di costruzione: 2000
Ristrutturato: si

Dati inserzione

ID Offrocasa.com: 9426031
Data inserimento: 24/08/2021
Rif. Agenzia: 780723/1276/B 971
Rif. Agenzia 780723/1276/B 971

TRE C Immobiliare

Viale Viale Matteotti,, 66 - Certaldo (Firenze)
0571664828
Richiedi Info dal form:
Accetto l'Informativa Privacy


TRE C Immobiliare

Viale Viale Matteotti,, 66 - Certaldo (Firenze)

Casa Indipendente in Vendita a Montaione, zona Mura, 265'000€, 155 m², con Box

Chiama
Contatta