Terreno edificabile in Vendita a Sanremo, zona Via Padre Semeria, 393'000€

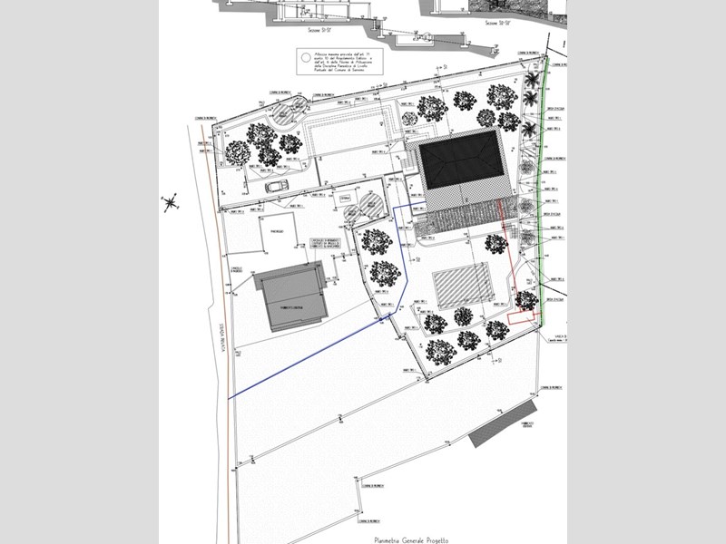
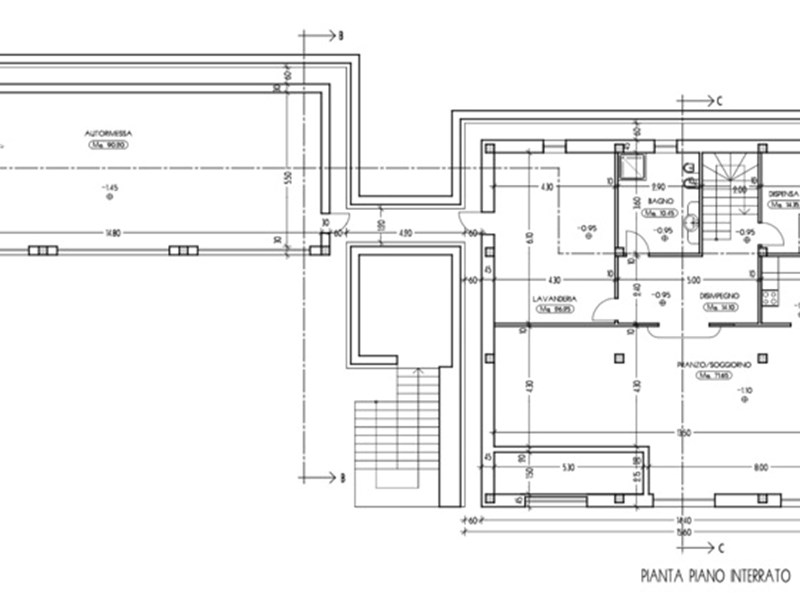
Sanremo progetto per costruire una villa con piscina e vista mare Nella residenziale Via padre Semeria, proponiamo, in esclusiva, un progetto per costruire una villa con garage e piscina. Il contesto è molto discreto e bello, sono tutte ville, meravigliosa vista mare. Terreno mq. 3000, comodo all' accesso Villa su due livelli superficie 250 mq. composta da un piano semi interrato ed uno fuori terra grande garage e piscina. Viene venduto con progetto approvato (oneri da pagare). Richiesta Euro 393.000 trattabili

Condizioni economiche

Contratto: Vendita
Prezzo: 393'000€
Prezzo trattabile:

Informazioni principali

Tipologia: Terreno edificabile
Città: Sanremo
Zona: Via Padre Semeria

Efficenza energetica

Classe energetica: In attesa di certificazione
Ipe: 00

Dati inserzione

ID Offrocasa.com: 9243120
Data inserimento: 11/03/2021
Rif. Agenzia: Progettosem
Rif. Agenzia Progettosem

Icom Immobiliare Group

Piazza San Siro 19 - Sanremo (Imperia)
3478014088
Richiedi Info dal form:
Accetto l'Informativa Privacy


Icom Immobiliare Group

Piazza San Siro 19 - Sanremo (Imperia)

Terreno edificabile in Vendita a Sanremo, zona Via Padre Semeria, 393'000€

Chiama
Contatta