Casa Indipendente in Vendita a Santa Lucia del Mela, zona contrada sola, 158'000€, 298 m²

Locali: 3
Bagni: 2
Camere: 3
Piano: piano terra e primo piano
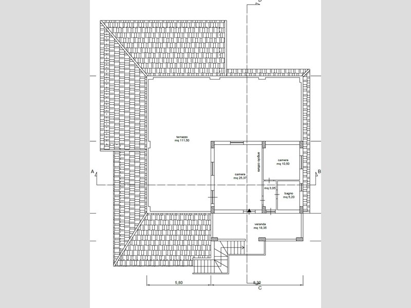
Immobile con terreno sito in Santa Lucia del Mela da ristrutturare. Piano Terra : Magazzino di 136,54 mq + Deposito 35,92 mq +Portico 111,31 mq+Bagno 4 mq Secondo Piano : Terrazzo 140,52 mq circa +2 camere+ bagno 1 Camera 10,50 mq-2 Camera 25,37 mq - Veranda 19,29 mq. Bagno 4,80 mq. Possibilità di applicare Ecobonus 110% e sismabonus sulla parte della terrazza e tetto del abitazione. Inoltre vi sono inclusi nel prezzo 4.000 mq di terreno intorno all' immobile. Struttura ideale per realizzare un Agriturismo o un attività Ristorativa o una Pizzeria o casa di campagna. Contattare se veramente interessati. Si valuta anche formula affitto con riscatto con garanzia Fidejussoria max 5 anni.

Condizioni economiche

Contratto: Vendita
Prezzo: 158'000€
Prezzo trattabile: si
Arredato: no
Spese condominiali: no
Libero: si

Informazioni principali

Tipologia: Casa Indipendente
Città: Santa Lucia del Mela
Zona: contrada sola
Superficie: 298 m²
N° locali: 3
N° bagni: 2
N° Camere: 3
Piano: piano terra e primo piano
Posto auto: 10
Giardino: si

Efficenza energetica

Classe energetica: In attesa di certificazione
Ipe: 0
Climatizzatore: no
Condizioni stabile: Da ristrutturare
Ristrutturato: no

Dati inserzione

ID Offrocasa.com: 9210930
Data inserimento: 12/02/2021

Francesco

contrada sola - santa lucia del mela (Messina)
3396825097
Richiedi Info dal form:
Accetto l'Informativa Privacy


Francesco

contrada sola - santa lucia del mela (Messina)

Casa Indipendente in Vendita a Santa Lucia del Mela, zona contrada sola, 158'000€, 298 m²

Chiama
Contatta