Appartamento in Vendita a Scansano, zona Fraz. Polveraia, 149'000€, 110 m²

Locali: 5
Bagni: 1
Camere: 3
Piano: terreno
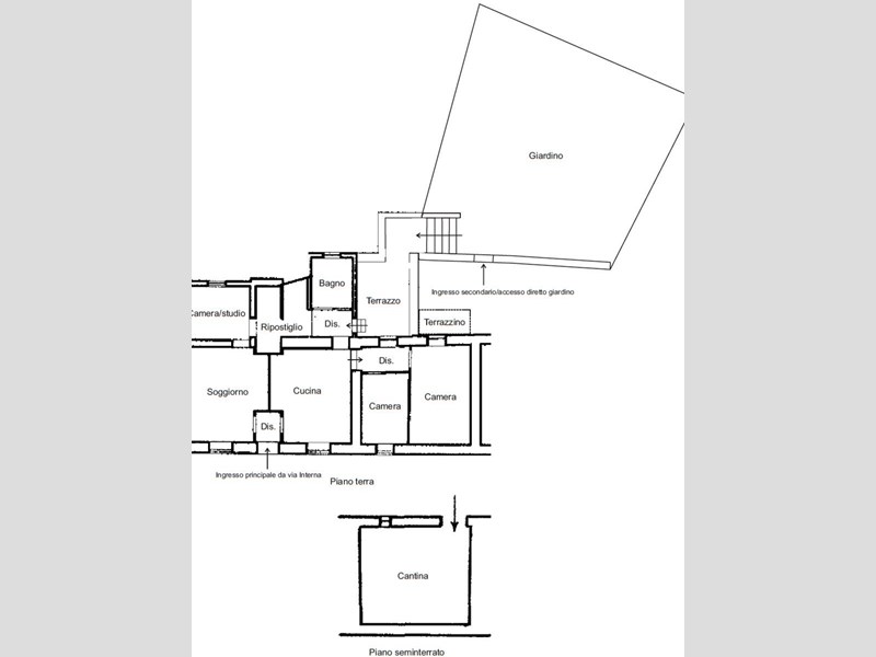
App. P.T., uniprop., circa 110 mq, in fabb. bifamiliare a 2 piani, costituito da cucina, sogg., tre camere da letto, bagno e ripostiglio. Riscaldamento aut. alimentato da caldaia a gas con possibilità di allaccio alla rete pubblica di distribuzione di gpl. E' presente anche stufa a legna (utilizzata di norma come unica fonte di calore) sufficiente a riscaldare l'intero appartamento, con consumo medio annuo pari a circa 60 q di legna (circa 650 euro/anno di costo). Al p. semint., cantina di circa 25 mq a cui si accede dalla pubblica via sul retro del fabb.. E' presente un terrazzo di circa 15 mq adiacente al giardino, ampio circa 150 mq (con pianta di olivo secolare, qual. olivastra seggianese) a cui si accede sia dall'app. che direttamente dalla pubblica via (ingresso secondario) Al piano del giardino è presente un ulteriore piccolo rip. utile per il rimessaggio degli attrezzi necessari alla manutenzione ordinaria del verde. Tetto del fabbricato e facciate esterne rifatte di recente ed in ottime condizioni, pavimenti appartamento nuovi. Impianti idraulico ed elettrico a norma e rifatti nel 2006. Note Nel ripostiglio sono predisposti scarichi e tubature acqua necessari a soddisfare la eventuale necessità di un ulteriore bagno. La casa è servita oltre che dal normale acquedotto per l'acqua potabile, anche da un acquedotto privato consortile (la quota consortile viene ceduta insieme all'immobile) che serve l'intera frazione, utilizzabile per le necessità legate all'irrigazione del giardino e della pertinenza dell'edificio. Parte del mobilio e degli arredi presenti possono essere ceduti insieme all'appartamento con trattativa separata. La casa è a circa 10 min di macchina da Scansano, 25 min da grosseto, 50 da Siena, 1 ora e mezza da Firenze e 2 ore da Roma e Pisa. Il mare dista circa 40 min, le terme di Saturnia circa 45 min, il monte Amiata circa 50 min. L'appartamento è libero e subito abitabile.

Condizioni economiche

Contratto: Vendita
Prezzo: 149'000€
Prezzo trattabile: si
Arredato: no
Libero: subito

Informazioni principali

Tipologia: Appartamento
Città: Scansano
Zona: Fraz. Polveraia
Superficie: 110 m²
N° locali: 5
N° bagni: 1
N° Camere: 3
Piano: terreno
N° balconi: 2
Cucina: abitabile
Giardino: si
Esposizione: sud ovest

Efficenza energetica

Classe energetica: In attesa di certificazione
Ipe: -
Climatizzatore: no
Anno di costruzione: 1952
Condizioni stabile: buone-ottime
Ristrutturato: ristrutturato
Pavimenti: nuovi
Serramenti esterni: legno alluminio
Impianti a norma: si
Riscaldamento: autonomo

Caratteristiche

Cantina: si

Dati inserzione

ID Offrocasa.com: 9144623
Data inserimento: 07/12/2020
Richiedi Info dal form:
Accetto l'Informativa Privacy


Luca

Appartamento in Vendita a Scansano, zona Fraz. Polveraia, 149'000€, 110 m²

Chiama
Contatta