Mansarda in Vendita a Ricadi, zona Santa Domenica di Ricadi-centro, 140'000€, 135 m², arredato

Bagni: 1
Camere: 4
Piano: Terzo
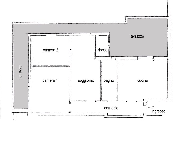
Ampia mansarda in vendita in pieno centro a S. Domenica di Ricadi. Collocata al terzo ed ultimo piano di un condominio dotato di ascensore, caratterizzata da riscaldamento autonomo e da un'ampia terrazza con tettoia e angolo vista mare. I m2 totali dell'immobile comprensivo di terrazza sono circa 135 m2. Ripartita in: -Corridoio; -Cucina abitabile; -Bagno; -n°2 camere da letto; -Soggiorno; -Ripostiglio; -Terrazza. Dotata di: Certificazione energetica e certificato di abitabilità. Posizione: Ampia facilità nel trovare parcheggio, zona servitissima a due passi dalla piazza e dal mare. A circa 1 km da Tropea. -Prezzo trattabile.

Condizioni economiche

Contratto: Vendita
Prezzo: 140'000€
Prezzo trattabile: Si
Arredato: Si
Spese condominiali: Trimestrali
Libero: si

Informazioni principali

Tipologia: Mansarda
Città: Ricadi
Zona: Santa Domenica di Ricadi-centro
Vicinanze: piazza, ogni tipo di servizio
Superficie: 135 m²
N° bagni: 1
N° Camere: 4
Piano: Terzo
N° balconi: 1
Box: no
Posto auto: no
Cucina: Abitabile
Esposizione: Sud Est con angolo vista mare

Efficenza energetica

Classe energetica: G
Ipe: -
Climatizzatore: no
Anno di costruzione: 1983
Condizioni stabile: buona
Ristrutturato: no
Pavimenti: ceramica
Serramenti esterni: in alluminio
Impianti a norma: si
Riscaldamento: autonomo

Caratteristiche

Cantina: no
Ascensore: si
Porta blindata: no
Cancello elettrico: no
Videocitofono: no
Satellite: no
Impianto allarme: no

Dati inserzione

ID Offrocasa.com: 9045927
Data inserimento: 14/09/2020

Giuseppe

Richiedi Info dal form:
Accetto l'Informativa Privacy


Giuseppe

Mansarda in Vendita a Ricadi, zona Santa Domenica di Ricadi-centro, 140'000€, 135 m², arredato

Contatta