Casa Semi Indipendente in Vendita a Morciano di Romagna, 150'000€, 140 m²

Locali: 4
Camere: 3
Piano: t
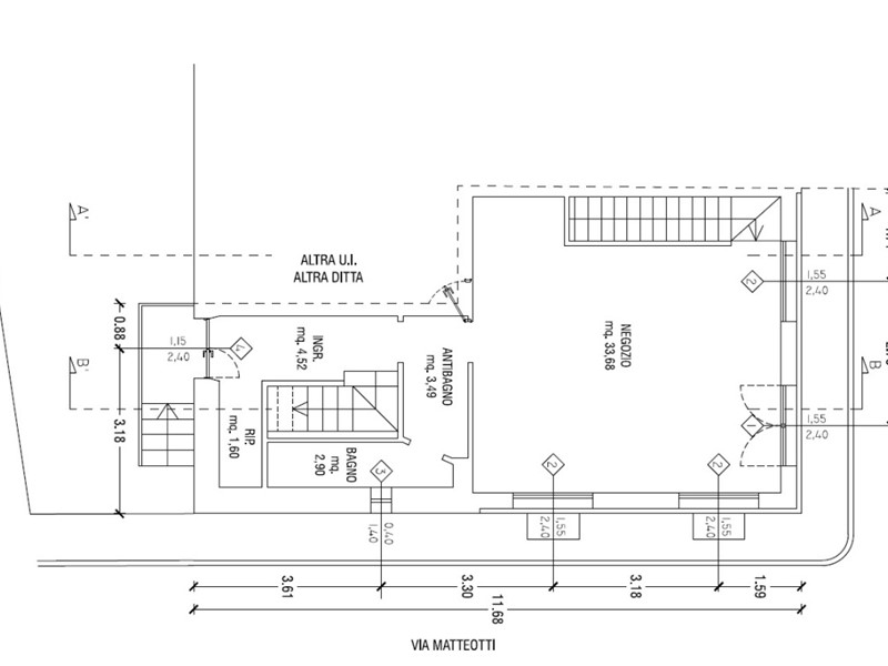
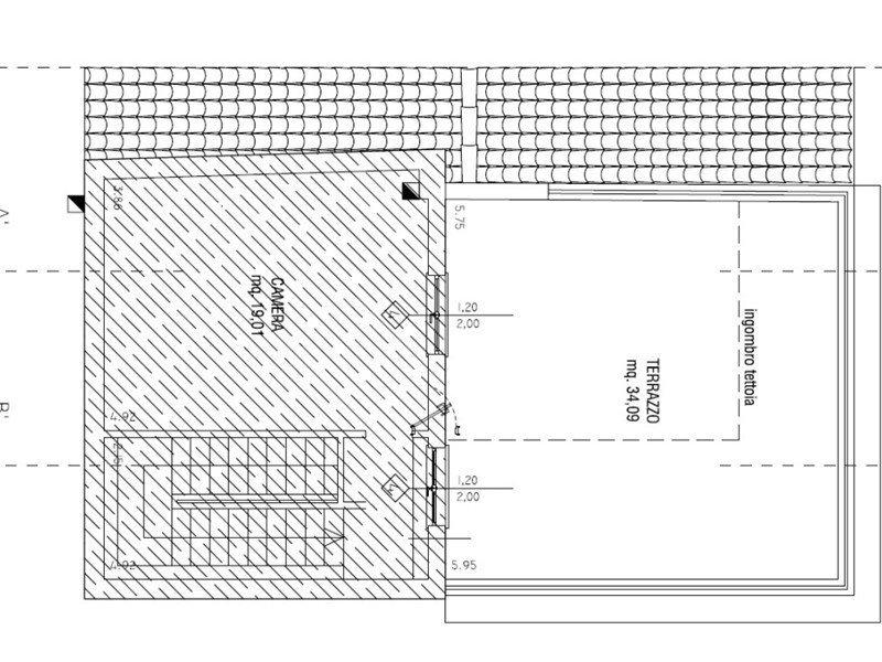
Fabbricato terra cielo nel centro di Morciano di Romagna. E' un ottima opportunità anche in vista delle numerose agevolazioni fiscali per gli interventi di ristrutturazione e di adeguamento energetico promossi negli ultimi mesi. L'immobile è completamente da ristrutturare. Le fondamenta sono già state consolidate. Il progetto di maggiore interesse prevede la realizzazione di un negozzio/studio al piano terra di circa 35/40 m mq collegato internamente ad uno scantinato altrettanto grande. L'unità abitativa prevede invece un ingresso dal retro con una parte di scantinato al piano seminterrato, un appartamento posto al primo piano e costituito da soggiorno con angolo cottura, camera matrimoniale, cameretta, bagno e balcone oltre ad un sottotetto con un ampio terrazzo vivibile che si affaccia sulla bella piazza del municipio, nel quale sarebbe possibile realizzare una terza camera. Per ulteriori informazioni potete contattare l'agenzia CheCasa! di Morciano al numero 0541.85.80.82

Condizioni economiche

Contratto: Vendita
Prezzo: 150'000€
Arredato: No

Informazioni principali

Tipologia: Casa Semi Indipendente
Città: Morciano di Romagna
Vicinanze: Centrale
Superficie: 140 m²
N° locali: 4
N° Camere: 3
Piano: t
N° balconi: 1
Cucina: Angolo cottura

Efficenza energetica

Classe energetica: G
Ipe: 210 KWh/m2a
Anno di costruzione: 1950
Condizioni stabile: Da ristrutturare
Riscaldamento: Autonomo

Caratteristiche

Cantina: Si

Dati inserzione

ID Offrocasa.com: 8989420
Data inserimento: 14/07/2020
Rif. Agenzia: 4706-G
Rif. Agenzia 4706-G

Studio Alba srl

Viale Catullo 25d - Riccione (RN)
0541.694306
Richiedi Info dal form:
Accetto l'Informativa Privacy


Studio Alba srl

Viale Catullo 25d - Riccione (RN)

Casa Semi Indipendente in Vendita a Morciano di Romagna, 150'000€, 140 m²

Chiama
Contatta