Quadrilocale in Vendita a Bologna, zona Centro, 398'000€, 120 m²

Locali: 4
Bagni: 2
Camere: 3
Piano: 1
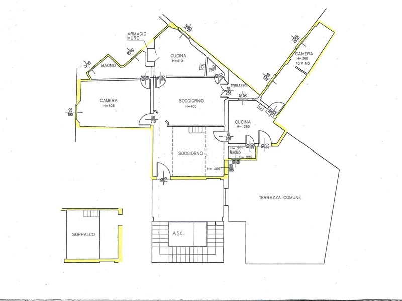
VENDITA DA PRIVATO A PRIVATO Adiacenze via Belle Arti, Bologna. Nel cuore del centro storico e a due passi da piazza Maggiore e dalla zona universitaria, l’appartamento ha superficie catastale di 120 mq e si trova in un edificio storico all’interno della cerchia dei Mille già cablato con fibra ottica. Situato al piano nobile di un edificio di tre piani servito da ascensore, l’appartamento ha tripli affacci di cui due interni che lo rendono tranquillo e silenzioso. L’altezza media è di circa 4 metri; alcuni locali hanno soffitti con volte a crociera. Dispone di due ingressi indipendenti entrambi con cancello di sicurezza. E’ composto da due ampi soggiorni di cui uno soppalcato, due camere, due cucine abitabili di cui una con penisola e piano in granito, doppi servizi finestrati recentemente ristrutturati, ripostiglio e balcone. E’ dotato di riscaldamento autonomo, impianto di climatizzazione e infissi con doppi vetri. La particolare articolazione degli spazi e l’esposizione dei locali rendono l’appartamento estremamente modulabile e personalizzabile, eventualmente divisibile in due unità o utilizzabile per attività di b&b e affitti brevi.

Condizioni economiche

Contratto: Vendita
Prezzo: 398'000€
Arredato: semiarredato
Spese condominiali: 60 euro mensili
Libero: agosto 2020

Informazioni principali

Tipologia: Quadrilocale
Città: Bologna
Zona: Centro
Vicinanze: via Belle Arti
Superficie: 120 m²
N° locali: 4
N° bagni: 2
N° Camere: 3
Piano: 1
N° balconi: 1
Cucina: abitabile

Efficenza energetica

Classe energetica: In attesa di certificazione
Ipe: -
Climatizzatore:
Riscaldamento: autonomo

Caratteristiche

Ascensore: Ascensore

Dati inserzione

ID Offrocasa.com: 8966225
Data inserimento: 21/06/2020

Gabriele

Richiedi Info dal form:
Accetto l'Informativa Privacy


Gabriele

Quadrilocale in Vendita a Bologna, zona Centro, 398'000€, 120 m²

Contatta