Appartamento in Vendita a Noci, 215'000€, 120 m², arredato

Locali: 5
Bagni: 2
Camere: 5
Piano: terzo
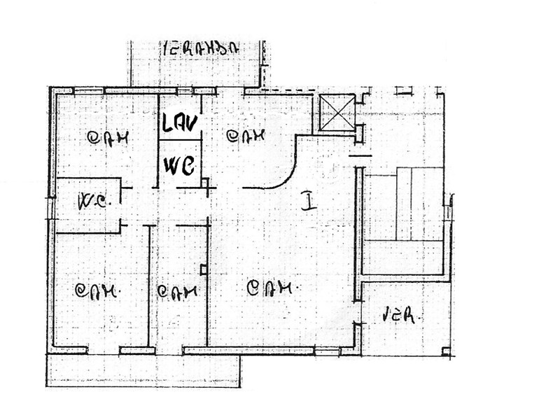
La soluzione di 120 mq è composta da ingresso su ampio soggiorno, cucina abitabile, 2 bagni, 2 camerette e camera matrimoniale. Due ampie verande illuminano di luce naturale la zona giorno e la cucina, ambiente ottimamente sfruttabile nella bella stagione anche per pasti e aperitivi. Il complesso abitativo dispone di un cortile interno ad uso esclusivo dei condomini. I lavori di ristrutturazione ultimati da pochi anni hanno ridistribuito efficacemente i volumi, rendendo l'appartamento comodo e confortevole. Aria condizionata e impianto termico autonomo. Posto auto. I pavimenti, le finiture ricercate, i nuovi impianti elettrici e idraulici concorrono a rendere la soluzione unica nella zona.

Condizioni economiche

Contratto: Vendita
Prezzo: 215'000€
Arredato: si
Libero: subito

Informazioni principali

Tipologia: Appartamento
Città: Noci
Superficie: 120 m²
N° locali: 5
N° bagni: 2
N° Camere: 5
Piano: terzo
N° balconi: 2
Box: no
Posto auto: si
Cucina: abitabile
Giardino: si
Esposizione: est

Efficenza energetica

Classe energetica: In attesa di certificazione
Ipe: -
Climatizzatore: si
Anno di costruzione: 1980
Condizioni stabile: buono
Ristrutturato: si
Pavimenti: nuovo
Serramenti esterni: si
Impianti a norma: si
Riscaldamento: autonomo

Caratteristiche

Cantina: no
Ascensore: si
Porta blindata: si
Cancello elettrico: si
Videocitofono: si
Satellite: no
Impianto allarme: no

Dati inserzione

ID Offrocasa.com: 8893755
Data inserimento: 25/04/2020

Felice

Richiedi Info dal form:
Accetto l'Informativa Privacy


Felice

Appartamento in Vendita a Noci, 215'000€, 120 m², arredato

Contatta