Immobile commerciale in Vendita a Luni, 600'000€,

Locali: 10+
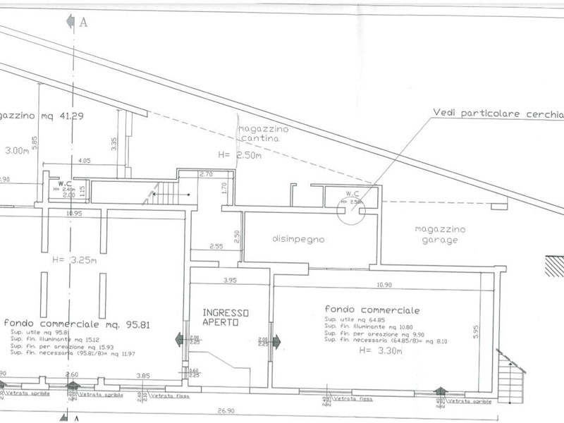
In zona di forte passaggio vendesi intero stabile parte commerciale e un appartamento uso abitazione. Al piano terra abbiamo ingresso fondo commerciale di circa 100mq con magazzino di mq.40 con bagno e fondo commerciale di mq.65 attualmente affittato con ottima rendita; al piano primo altro fondo uso ufficio di mq.140 con bagni e ampio appartamento di mq.130 composto da ingresso, soggiorno, cucina con zona pranzo, ripostiglio, bagno, 3 camere. L'appartamento è dotato di 30mq di garage e 20mq di cantina con bagno al piano terra.

Condizioni economiche

Contratto: Vendita
Prezzo: 600'000€
Arredato: No

Informazioni principali

Tipologia: Immobile commerciale
Città: Luni
N° locali: 10+

Efficenza energetica

Classe energetica: G
Anno di costruzione: 0
Condizioni stabile: Buono

Dati inserzione

ID Offrocasa.com: 8886260
Data inserimento: 23/04/2020
Rif. Agenzia: 106488
Rif. Agenzia 106488

Immobiliare Sogno Casa

Via Aurelia 264 - Luni (SP)
0187.661800
Richiedi Info dal form:
Accetto l'Informativa Privacy


Immobiliare Sogno Casa

Via Aurelia 264 - Luni (SP)

Immobile commerciale in Vendita a Luni, 600'000€,

Chiama
Contatta