Terreno edificabile in Vendita a Andora, zona Pinamare, 380'000€, 110 m²

Locali: 8
Camere: 4
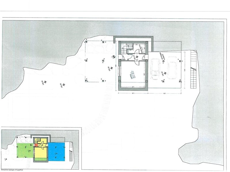
LO SPAZIO IMMOBILIARE vi propone in vendita, Nella prestigiosa cornice di Pinamare, in posizione riservata e tranquilla, terreno edificabile con vista panoramica e progetto in fase di approvazione, per la realizzazione di una villa su due livelli con piscina, composta da: ampia zona living, cucina abitabile, quattro camere da letto, doppi servizi, dispensa, al piano inferiore grande cantina di 21 mq, ampi terrazzi, giardino, due posti auto coperti. Siamo a disposizione per informazioni e/o appuntamenti, presso la nostra Agenzia, sita in Andora (SV), Via Aurelia 74, recapito telefonico 0182.85161 e/o indirizzo e-mail: info@lospazio.net. Siamo aperti tutti i giorni tranne il giovedi' e la domenica pomeriggio. Potete visionare il nostro sito: www.immobiliarelospazio.com.

Condizioni economiche

Contratto: Vendita
Prezzo: 380'000€
Arredato: No

Informazioni principali

Tipologia: Terreno edificabile
Città: Andora
Zona: Pinamare
Superficie: 110 m²
N° locali: 8
N° Camere: 4
Posto auto: Si
Cucina: Abitabile

Efficenza energetica

Classe energetica: NA
Anno di costruzione: 0
Condizioni stabile: Nuovo
Riscaldamento: Autonomo

Caratteristiche

Cantina: Si

Dati inserzione

ID Offrocasa.com: 8845762
Data inserimento: 23/04/2020
Rif. Agenzia: T002
Rif. Agenzia T002

Immobiliare Lo Spazio Sas

Via Aurelia, 74 - Andora (SV)
0182.85161
Richiedi Info dal form:
Accetto l'Informativa Privacy


Immobiliare Lo Spazio Sas

Via Aurelia, 74 - Andora (SV)

Terreno edificabile in Vendita a Andora, zona Pinamare, 380'000€, 110 m²

Chiama
Contatta