Casa Indipendente in Vendita a Lucca, zona Est, 295'000€, 300 m², con Box
        
    
        
    
        
    
    
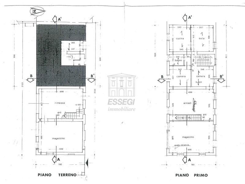
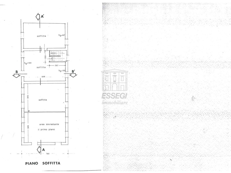
        IA01801 INTERESSANTE FABBRICATO A VOCAZIONE COMMERCIALE a 1,5 km dalle mura su strada ad alto scorrimento. Posizionato in una importante zona a vocazione commerciale ad alta visibilità il fabbricato, abitabile, con presente un grande appartamento al PT e P1° con magazzini annessi,si presta per una trasformazione per diventare o uno splendido edificio ad uso commerciale e uffici o un misto commerciale residenziale. L'immobile ha corredo di terreno privato sul fronte stradale e internamente una grande corte privata con giardino sulla quale insiste un bel garage. Sviluppa in circa mq.150 a piano per complessivi mq.300 oltre a garage  di mq.15. Classe energetica G .Richiesta ribassata a €.295.000,00 ( €.930 mq)  N.B. Per motivi di privacy la posizione indicata non corrisponde all'esatta ubicazione dell'immobile
	
    
    
    
        
        
            Condizioni economiche
            
                Contratto: Vendita
            
            
                Prezzo: 295'000€
            
            
                
                    Arredato: No
                
            
         
        
            Informazioni principali
            
                Tipologia: Casa Indipendente
            
            
                Città: Lucca
            
            
                
                    Zona: Est
                
            
                
                    Superficie: 300 m²
                
            
                
                    N° locali: 9
                
            
                
                    N° Camere: 4
                
            
                
                    Piano: t
                
            
                
                    Box: Si
                
            
                
                    Posto auto: Si
                
            
                
                    Cucina: Abitabile
                
            
                
                    Giardino: Si
                
            
         
        
            Efficenza energetica
            
                Classe energetica: G
            
            
                
                    Ipe: 441.09 KWh/m2a
                
            
                
                    Anno di costruzione: 0
                
            
                
                    Condizioni stabile: Da ristrutturare
                
            
		 
        
            
                Dati inserzione
                
                    ID Offrocasa.com: 8840463
                
                
                
                    Data inserimento: 23/04/2020
                
                
                    
                        Rif. Agenzia: IA01801
                    
                
             
        
	 
    
    
        
Casa Indipendente in Vendita a Lucca, zona Est, 295'000€, 300 m², con Box