Capannone in Vendita a Sarzana,

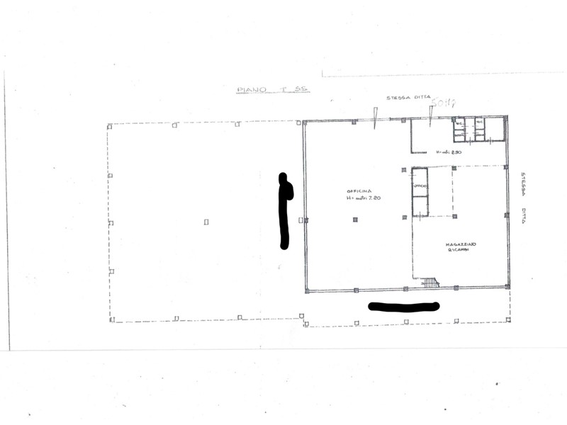
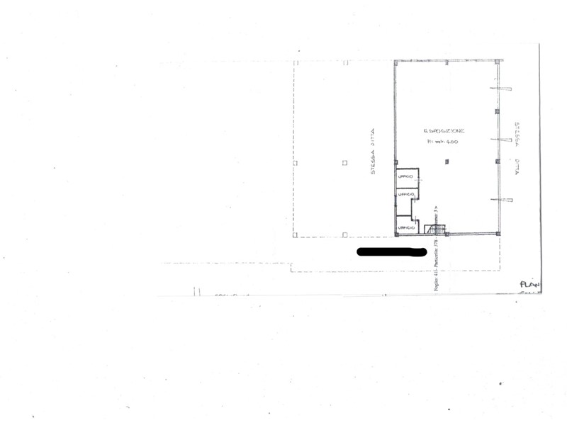
Nella zona industriale di Sarzana si affitta capannone disposto su due livelli così suddivisi: Piano terra (destinazione d'uso commerciale) mq 400 con piazzale esterno - canone mensile euro 4.000 + iva Piano inferiore (destinazione d'uso artigianale) mq 800 con via d'accesso e possibilità di parcheggio - canone mensile 3.500 + iva Gli immobili sono disponibili anche per la vendita, anche singolarmente.

Condizioni economiche

Contratto: Vendita
Prezzo: Prezzo su richiesta
Arredato: No

Informazioni principali

Tipologia: Capannone
Città: Sarzana

Efficenza energetica

Classe energetica:
Anno di costruzione: 0

Dati inserzione

ID Offrocasa.com: 8836931
Data inserimento: 23/04/2020
Rif. Agenzia: PAF2751
Rif. Agenzia PAF2751

Papini Lazzari S.r.l.

Via Rossi 50 - Sarzana (SP)
0187.621367
Richiedi Info dal form:
Accetto l'Informativa Privacy


Papini Lazzari S.r.l.

Via Rossi 50 - Sarzana (SP)

Capannone in Vendita a Sarzana,

Chiama
Contatta