Capannone in Vendita a Vezzano Ligure, zona vezzano ligure,

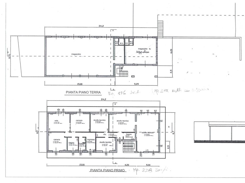
Nelle vicinanze del raccordo autostradale si vende fabbricato sviluppato su tre livelli per un totale di 428 mq più area esterna di mq 1495 fra terreno e area parcheggio. Si tratta di locali al piano seminterrato per una superficie di mq. 460 (altezza 3 mt) , al piano terra locali a uso magazzino/deposito per mq. 250 e due unità al primo piano per un totale di 210 mq + 25 di terrazze

Condizioni economiche

Contratto: Vendita
Prezzo: Prezzo su richiesta
Arredato: No

Informazioni principali

Tipologia: Capannone
Città: Vezzano Ligure
Zona: vezzano ligure

Efficenza energetica

Classe energetica:
Anno di costruzione: 0

Dati inserzione

ID Offrocasa.com: 8836927
Data inserimento: 23/04/2020
Rif. Agenzia: pav2746
Rif. Agenzia pav2746

Papini Lazzari S.r.l.

Via Rossi 50 - Sarzana (SP)
0187.621367
Richiedi Info dal form:
Accetto l'Informativa Privacy


Papini Lazzari S.r.l.

Via Rossi 50 - Sarzana (SP)

Capannone in Vendita a Vezzano Ligure, zona vezzano ligure,

Chiama
Contatta