Villa in Vendita a Conselice, 195'000€, 176 m²

Locali: 6
Bagni: 2
Camere: 3
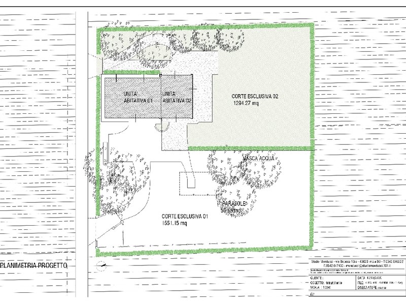
Villa con archi in mattoni Porzione di bellissima villa indipendente con ampio giardino privato, in contesto tranquillo e silenzioso. Splendida casa in mattoni a vista composta da due unità immobiliari. Soluzione composta da 176 mq componibili secondo varie soluzioni, come ad esempio: al piano terra, soggiorno, cucina, accogliente ingresso e zona lavanderia. Al piano primo, bagno, 3 camere da letto di cui 2 matrimoniali con cabina armadio. Inoltre, è possibile poter godere di detrazioni fiscali per interventi di riqualificazione energetica fino alla classe energetica A4. Ingresso carrabile e pedonale indipendente e giardino esterno privato di circa 1200 mq. La casa si colloca d circa 4 minuti dal centro abitato di Conselice e 15 dal casello autostradale di Imola, da cui poter raggiungere Bologna in 45 minuti e Ravenna in 35 minuti. All’interno eleganti travi in legno a vista originali e gelosie in mattoni, valorizzano la spazialità della casa e aprono la vista sul panorama del giardino. Possibile detrazione fiscale del 25%. Possibilità di scegliere le rifiniture e personalizzare la disposizione degli interni a partire da euro 195.000 ultimata. Inoltre potete scegliere fra varie soluzioni personalizzate sulla base della vostre esigenze. Per esempio il nostro studio offre il servizio di rilievo dei vostri arredi di casa per poter adattare la nuova casa ai mobili a cui siete affezionati, tuttavia potete sempre decidere di acquistarne di nuovi con la nostra consulenza. Per maggiori informazioni o per un appuntamento senza impegno non esitate a contattarci.

Condizioni economiche

Contratto: Vendita
Prezzo: 195'000€
Arredato: no
Spese condominiali: no
Libero: subito

Informazioni principali

Tipologia: Villa
Città: Conselice
Superficie: 176 m²
N° locali: 6
N° bagni: 2
N° Camere: 3
Posto auto: si
Cucina: abitabile
Giardino: si, 1200

Efficenza energetica

Classe energetica: A+
Ipe: 10
Climatizzatore: si
Anno di costruzione: 2020
Ristrutturato: Ristrutturato
Serramenti esterni: Serramenti esterni
Impianti a norma: Impianti a norma
Riscaldamento: si

Caratteristiche

Porta blindata: Porta blindata
Cancello elettrico: Cancello elettrico
Videocitofono: Videocitofono
Satellite: Satellite
Impianto allarme: Impianto allarme

Dati inserzione

ID Offrocasa.com: 8829508
Data inserimento: 15/04/2020
Rif. Agenzia: 02.1
Rif. Agenzia 02.1

Lisa

via bicocca, 16a - Imola (Bologna)
3407165993
Richiedi Info dal form:
Accetto l'Informativa Privacy


Lisa

via bicocca, 16a - Imola (Bologna)

Villa in Vendita a Conselice, 195'000€, 176 m²

Chiama
Contatta