Capannone in Affitto a Roma, zona Ardeatina, 5'000€, 535 m², arredato

Bagni: 3
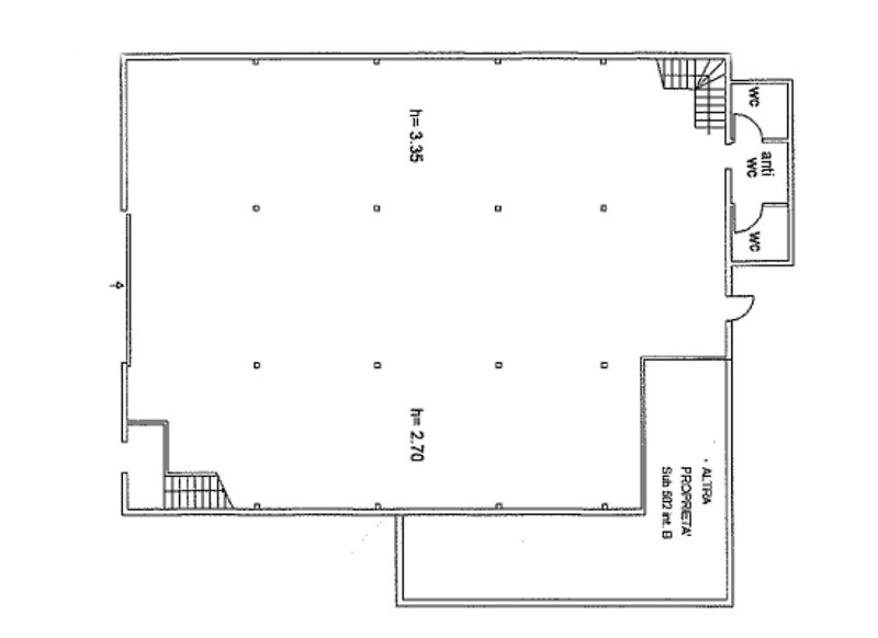
All’uscita 24 del GRA e non molto distante dall’aeroporto di Ciampino, è nel polo artigianale tra via Appia e via Ardeatina. Vi propongo un Capannone di 535 mq totali di cui al piano terra mq 300 di categoria D07 e mq 25 commerciali C01, mentre al piano superiore mq 210 di categoria D07. L'immobile è adiacente ad un capannone di pari dimensioni e si trova vicino a una piccola abitazione presente nello stesso lotto. Lo stato del fabbricato è in buone condizioni mentre l’area esterna è di 1300 mq con due cancelli d’ingresso.

Condizioni economiche

Contratto: Affitto
Prezzo: 5'000€
Prezzo trattabile: SI
Arredato: Si
Libero: Subito

Informazioni principali

Tipologia: Capannone
Città: Roma
Zona: Ardeatina
Vicinanze: Aereoporto Ciampino
Superficie: 535 m²
N° bagni: 3
Posto auto: tanti

Efficenza energetica

Classe energetica: In attesa di certificazione
Ipe: -
Anno di costruzione: 1990
Condizioni stabile: Buone
Ristrutturato: Si
Pavimenti: Piastrelle in cotto
Riscaldamento: Autonomo

Dati inserzione

ID Offrocasa.com: 8808895
Data inserimento: 29/03/2020
Rif. Agenzia: Capannone tra via Ardeatina e aereoporto Ciampino
Rif. Agenzia Capannone tra via Ardeatina e aereoporto Ciampino

Mauro

Via Pierandrea Mattioli, 44 - Roma
3346262110
Richiedi Info dal form:
Accetto l'Informativa Privacy


Mauro

Via Pierandrea Mattioli, 44 - Roma

Capannone in Affitto a Roma, zona Ardeatina, 5'000€, 535 m², arredato

Chiama
Contatta