Magazzino in Vendita a Roma, zona San Giovanni, 249'000€, 310 m²

Locali: 1
Bagni: 1
Piano: semi-interrato
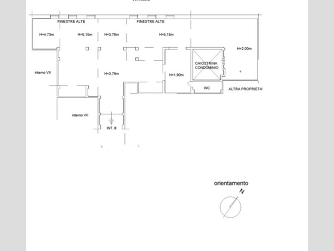
Via Rimini, San Giovanni. A Pochi passi da Via Appia Nuova proponiamo locale commerciale di 310 mq.ca accatastato C/2 (magazzino) ubicato al piano semi-interrato con doppio ingresso: uno da strada e uno dal giardino condominiale. Il locale è un grande open space con servizio, da ristrutturare. Impianti da rifare, tranne l'impianto anti-incendio che è di nuova installazione. L'immobile è libero subito. Il proprietario considera anche la possibilità della locazione con un canone mensile di 1.200 €

Condizioni economiche

Contratto: Vendita
Prezzo: 249'000€
Arredato: no
Spese condominiali: 100€
Libero: si

Informazioni principali

Tipologia: Magazzino
Città: Roma
Zona: San Giovanni
Vicinanze: Via Appia Nuova
Superficie: 310 m²
N° locali: 1
N° bagni: 1
Piano: semi-interrato
Box: no
Posto auto: no
Giardino: no
Esposizione: doppia

Efficenza energetica

Classe energetica: G
Ipe: 175
Climatizzatore: no
Anno di costruzione: 1930
Condizioni stabile: buone
Ristrutturato: da ristrutturare
Serramenti esterni: metallo
Impianti a norma: no
Riscaldamento: assente

Caratteristiche

Cantina: no
Ascensore: no
Porta blindata: no
Cancello elettrico: no
Videocitofono: no
Satellite: no
Impianto allarme: no

Dati inserzione

ID Offrocasa.com: 8807069
Data inserimento: 25/03/2020
Rif. Agenzia: 1708618
Rif. Agenzia 1708618

Omega Service Consulting S.r.l.

Via Principe Amedeo 166/b - Roma
06.4461826
Richiedi Info dal form:
Accetto l'Informativa Privacy


Omega Service Consulting S.r.l.

Via Principe Amedeo 166/b - Roma

Magazzino in Vendita a Roma, zona San Giovanni, 249'000€, 310 m²

Chiama
Contatta