Appartamento in Vendita a Calimera, 166'000€, 225 m²

Locali: 8
Bagni: 3
Camere: 4
Piano: 1
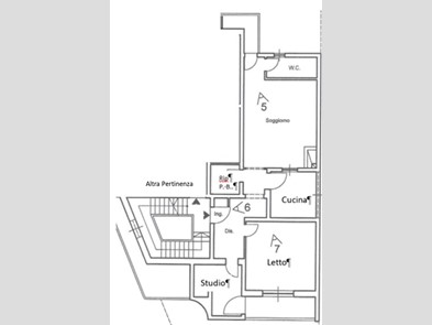
A pochi minuti in macchina dal mare e da Lecce, si offrono due appartamenti siti in Calimera alla via Basilicata, 34, posti al piano primo sviluppando una superficie lorda complessiva di circa mq 500. Lo stabile dove sono siti gli appartamenti affaccia su un amplio slargo della via. L’elegante portone di ingresso è esclusivo per gli appartamenti. Al pian terreno vi è anche un vano dove poter collocare oggetti o mezzi quali biciclette. Una comoda scala permette l’accesso al primo piano dove i due appartamenti sono situati. Un primo appartamento composto da ingresso, sala da pranzo/soggiorno, cucina ed angolo cottura, disimpegno con due bagni e tre camere da letto una superficie lorda complessiva di circa mq 150,00 lordi, circa 125 commerciali. Per questo appartamento la richiesta è di € 88.000. Il secondo appartamento ha un disimpegno con un soggiorno/sala da pranzo, cucina, , una camera da letto, uno studio ed un bagno con una superficie lorda complessiva di circa 100 mq lordi. Per questo appartamento la richiesta è di € 78.000. Le zone comuni includono: amplio ingresso al piano terra, scale, terrazza che copre tutto il fabbricato. La vendita congiunta è disponibile, prezzo da negoziare. Non ci sono alcune pendenze legali o di altro tipo che riguardano l'immobile Calmiera è un comune di 6 933 abitanti della provincia di Lecce in Puglia, situato a soli 16 km dal capoluogo, alla stessa distanza dal mare si trova Torre dell’Orso e a 21 km dai laghi Alimini. La città ha tutti i servizi necessari sia per passare la stagione estiva, sia per viverci comodamente durante tutto l’anno.

Condizioni economiche

Contratto: Vendita
Prezzo: 166'000€
Arredato: No
Libero: Subito

Informazioni principali

Tipologia: Appartamento
Città: Calimera
Superficie: 225 m²
N° locali: 8
N° bagni: 3
N° Camere: 4
Piano: 1
N° balconi: 4
Cucina: Abitabile
Esposizione: Est

Efficenza energetica

Classe energetica: F
Ipe: -
Impianti a norma: Impianti a Norma
Riscaldamento: Autonomo

Dati inserzione

ID Offrocasa.com: 8791191
Data inserimento: 01/03/2020

Stefano

3737327810
Richiedi Info dal form:
Accetto l'Informativa Privacy


Stefano

Appartamento in Vendita a Calimera, 166'000€, 225 m²

Chiama
Contatta