Casa di corte in Vendita a Borgo Ticino, zona Via orgoglia 34, 48'000€, 135 m²

Locali: 5
Bagni: 1
Camere: 5
Piano: 2 ultimo
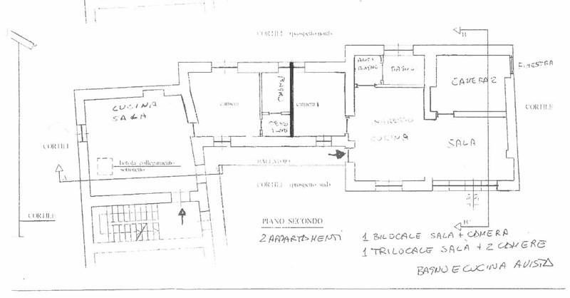
Privato vende porzione indipendente di edificio rurale posto all'interno di un complesso agricolo a ridosso del nucleo centrale del comune di Borgo Ticino Via Orgoglia 34. Edificio in discrete condizioni generali. L'unita abitativa necessita di appropriata ristrutturazione, copre nell'interezza l'ultimo piano dell'edificio (134Mq), si trova in zona soleggiata e tranquilla, gode di doppia esposizione e dotata di tutti gli allacci operativi. Elettrico, idrico, fognario e gas. Con eventuale frazionamento si possono ricavare due distinte unita abitative come da prospetto allegato. Terreno di pertinenza, di cui una parte da utilizzarsi a giardino, in condivisione con gli altri proprietari dello stabile. Ampio locale deposito a piano terreno, già completamente ristrutturato e disponibile all'uso. Eventuali terreni boschivi/edificabili situati nel comune da abbinarsi se desiderato. Gli interessati sono liberi di visionare la proprieta autonomamente e se interessati dopo il primo sopraluogo contattare il Sig Marco per una visita su appuntamento. Documentazione supplementare disponibile online su DropBox, telefonare per link. Trattativa privata senza agenzia. Proprieta Andrea 00358442067414, skype berandvis, residente all'estero Finlandia. Contatto in italia Marco 3458500897, Wup 3458500897.Chiamare tutti i giorni dopo le 15:00 fino alle 23:30.

Condizioni economiche

Contratto: Vendita
Prezzo: 48'000€
Arredato: no
Libero: si subito

Informazioni principali

Tipologia: Casa di corte
Città: Borgo Ticino
Zona: Via orgoglia 34
Superficie: 135 m²
N° locali: 5
N° bagni: 1
N° Camere: 5
Piano: 2 ultimo
N° balconi: 1
Cucina: si
Giardino: si
Esposizione: nord

Efficenza energetica

Classe energetica: In attesa di certificazione
Ipe: 5
Climatizzatore: dipende
Anno di costruzione: 1940
Condizioni stabile: buone
Ristrutturato: da ristrutturare
Pavimenti: da vedere
Serramenti esterni: da vedere
Impianti a norma: non presenti
Riscaldamento: non presente

Caratteristiche

Cantina: si
Ascensore: no

Dati inserzione

ID Offrocasa.com: 8750028
Data inserimento: 18/01/2020
Rif. Agenzia: Privato vende porzione indipendente di edificio ru
Rif. Agenzia Privato vende porzione indipendente di edificio ru

Andrea Marco

3458500897
Richiedi Info dal form:
Accetto l'Informativa Privacy


Andrea Marco

Casa di corte in Vendita a Borgo Ticino, zona Via orgoglia 34, 48'000€, 135 m²

Chiama
Contatta