Quadrilocale in Vendita a Vandoies, zona Vandoies di Sotto, 286'000€, 104 m²

Locali: 4
Bagni: 2
Camere: 3
Piano: 2
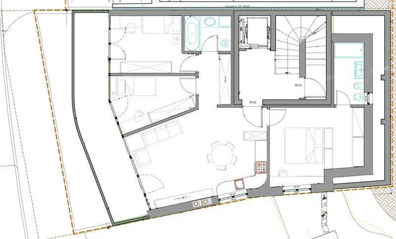
A Vandoies di Sotto (Alto Adige) in una posizione molto soleggiata e tranquilla viene realizzato il nuovo progetto di costruzione "Tulipan". Il moderno complesso residenziale è composto da 3 unità abitative (appartamenti da 3 e 4 locali) con ampie terrazze panoramiche ed una splendida vista sulla Val Pusteria. Unità 3 appartamenti con cantina - 2 appartamenti già venduti. Superficie dell'appartamento al 2 ° piano L'appartamento può essere scelto su richiesta come un appartamento da 3 o 4 stanze. La superficie netta è di circa 80 m² Parcheggio Ampio garage per 2 auto (garage su richiesta) Standard energetico Casa Clima Standard "A Nature" - ventilazione domestica controllata Riscaldamento Teleriscaldamento - riscaldamento autonomo a pavimento con controllo individuale delle stanze Accessori Ottimo isolamento acustico e termico - tapparelle elettriche - tripli vetri - 2 bagni - ascensore Volentieri invio ulteriori informazioni. Nessuna provvigione. Tutte le informazioni sono indicative e possono essere soggette a modifiche. Il prezzo indicato è IVA eaclusa ed indica il prezzo convenzionato (art. 79, legge provinciale 13/1997). Un’ eventuale liberalizzazione dal vincolo è possibile e viene calcolata a parte.

Condizioni economiche

Contratto: Vendita
Prezzo: 286'000€
Arredato: No
Libero: in costruzione, consegna fine 2020

Informazioni principali

Tipologia: Quadrilocale
Città: Vandoies
Zona: Vandoies di Sotto
Superficie: 104 m²
N° locali: 4
N° bagni: 2
N° Camere: 3
Piano: 2
N° balconi: 1
Posto auto: 2
Giardino: no
Esposizione: sud-ovest

Efficenza energetica

Classe energetica: A+
Ipe: -
Climatizzatore: si
Anno di costruzione: 2019/2020
Condizioni stabile: nuovo
Riscaldamento: autonomo

Caratteristiche

Cantina: 8 m2
Ascensore: si
Satellite: si

Dati inserzione

ID Offrocasa.com: 8709009
Data inserimento: 03/12/2019

Manuel

Richiedi Info dal form:
Accetto l'Informativa Privacy


Manuel

Quadrilocale in Vendita a Vandoies, zona Vandoies di Sotto, 286'000€, 104 m²

Contatta