Ufficio in Affitto a Milano, zona Mecenate - Fantoli , 116'250€, 750 m²

Locali: 8
Bagni: 6
Piano: TERZO
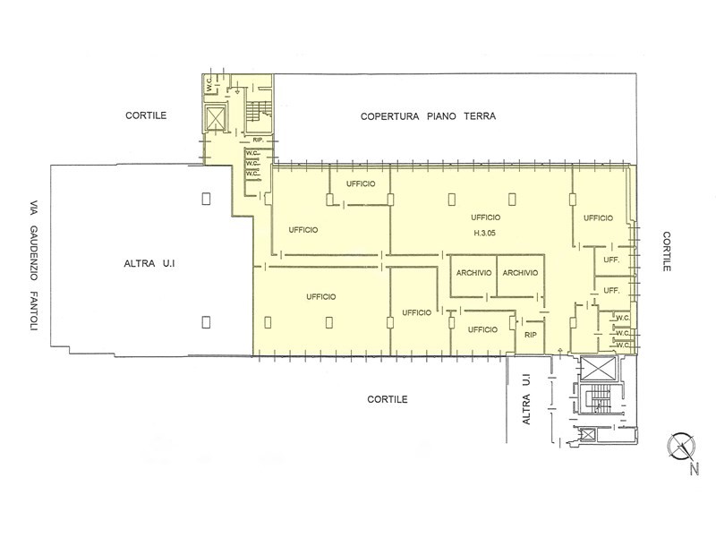
PREZZO TRATTABILE Affittasi ufficio mq. 750, piano terzo, nel prestigioso complesso “ATLANTIC BUSINESS CENTER" via Fantoli,5-7-9 Milano Mecenate/Forlanini. Classe energetica B – IPE 211,27 kWh/m2a, 8 Uffici, 6 bagni, pavimento in PVC, riscaldamento e condizionamento centralizzati, impianti a norma, spese condominiali previste a parte. Portierato 24 ore al giorno, tutto l’anno, collegamento antirapina con istituto di vigilanza, telecamere con rilevatori di presenza, rilevatori antifumo. Il complesso è posto a fianco dei Gucci Headquarters e albergo Collini Rooms; Si affittano uffici, capannone, magazzini e laboratori da mq.125 a 750 classe energetica da B a D – da IPE 211.27 a 756,76 kWh/m2a, possibilità di insegna sul tetto vista aeroporto Linate e tangenziale Est. A soli 4 km dal centro di Milano e 6 km dalla Stazione Centrale A 300 Metri uscite Tangenziali Est ed Ovest 2 Km dall’Aeroporto di Linate, 800 Metri dall’ A.T.A. privato Servizi pubblici Tram 27 a 200 Metri MM Linea 3 Rogoredo a 3 fermate di autobus 88 129 Parcheggi interni coperti e scoperti All’interno del complesso immobiliare sono presenti numerosi servizi: Poste Italiane, A.S.S.T. SACCO, A.S.S.T. NORD MILANO e Ospedale Maggiore Non ci sono commissioni di agenzia in quanto proprietari. CANONE ANNUO € 116.250,00 + IVA TRATTABILE E-mail: info@finstar.it tel. 025060859 website: www.atlanticenter.com http://www.youtube.com/watch?v=4HHIB3HLXsg

Condizioni economiche

Contratto: Affitto
Prezzo: 116'250€
Prezzo trattabile: SI
Arredato: NO
Libero: SI

Informazioni principali

Tipologia: Ufficio
Città: Milano
Zona: Mecenate - Fantoli
Vicinanze: Linate
Superficie: 750 m²
N° locali: 8
N° bagni: 6
Piano: TERZO
Posto auto: SI
Cucina: no
Giardino: SI

Efficenza energetica

Classe energetica: B
Ipe: 211,27
Climatizzatore: CENTRALIZZATO
Anno di costruzione: 1970
Condizioni stabile: OTTIME
Ristrutturato: SI
Pavimenti: PVC
Serramenti esterni: ALLUMINIO
Impianti a norma: SI
Riscaldamento: CENTRALIZZATO

Caratteristiche

Cantina: no
Ascensore: SI
Porta blindata: SI
Cancello elettrico: SI
Videocitofono: no
Satellite: no
Impianto allarme: SI

Dati inserzione

ID Offrocasa.com: 8404470
Data inserimento: 04/09/2018
Rif. Agenzia: 01
Rif. Agenzia 01

Finstar S.p.A.

Via G. Fantoli, 7 - Milano
025060859
Richiedi Info dal form:
Accetto l'Informativa Privacy


Finstar S.p.A.

Via G. Fantoli, 7 - Milano

Ufficio in Affitto a Milano, zona Mecenate - Fantoli , 116'250€, 750 m²

Chiama
Contatta