Bilocale in Affitto a Milano, 1'450€, 90 m²

Locali: 2
Bagni: 2
Camere: 1
Piano: 2
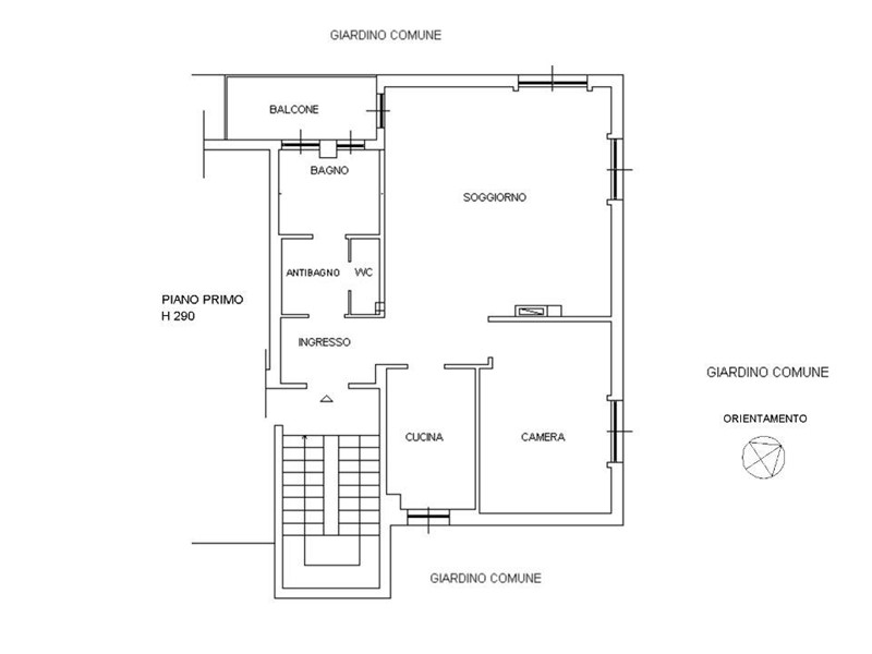
QT8. SPLENDIDO BILOCALE RISTRUTTURATO. In bellissimo contesto residenziale immerso nel verde, in Piazza Santa Maria Nascente, Kers Immobiliare propone in locazione splendido appartamento sito al primo piano di una ex villa indipendente con ampio giardino condominiale. La soluzione recentemente ristrutturata da architetto si compone di: ingresso, luminosissimo soggiorno angolare con accesso all'ampio balcone godibile con vista sul Parco Monte Stella; cucina separata dotata di tutti gli elettrodomestici, spaziosa camera matrimoniale, servizio completo finestrato e antibagno con armadiatura guardaroba a misura e secondo bagno cieco con zona lavanderia. Riscaldamento autonomo a caloriferi, aria condizionata, pavimentazione continua a parquet. Contesto condominiale molto tranquillo e silenzioso, dotato di servizio di sorveglianza e zona per il parcheggio biciclette. La zona è servita da numerose attività commerciali, molto ben collegata grazie alla presenza di numerosi mezzi di superficie e a soli 2 min dalla fermata M1 QT8. LIBERO SUBITO Classe energetica E 190,17 kWh/mqa. CODICE ANNUNCIO 26/046 S.M. Nascente Le informazioni della presente scheda sono puramente indicative e non costituiscono condizioni contrattuali. Gli incarichi Kers Immobiliare sono proposti attraverso l'esclusiva formula "Acquisto Sicuro" a maggior garanzia dei clienti acquirenti. Per qualsiasi consulenza immobiliare contatti uno dei nostri Brokers. KERS Immobiliare è aperta alle collaborazioni con altri Agenti e Agenzie attraverso la sottoscrizione del Patto di Collaborazione e Trasparenza e Codice Etico Kers Immobiliare sta cercando per la propria clientela immobili di diversa tipologia, anche da ristrutturare. Ci contatti per una consulenza immobiliare gratuita. La Privacy Policy è consultabile sul nostro sito

Condizioni economiche

Contratto: Affitto
Prezzo: 1'450€
Arredato: Parzialmente arredato
Spese condominiali: 150€
Libero: Si

Informazioni principali

Tipologia: Bilocale
Città: Milano
Superficie: 90 m²
N° locali: 2
N° bagni: 2
N° Camere: 1
Piano: 2

Efficenza energetica

Classe energetica: E
Ipe: 190,17 kwh_m2
Anno di costruzione: 1960
Condizioni stabile: Molto buono
Riscaldamento: Autonomo

Dati inserzione

ID Offrocasa.com: 11050927
Data inserimento: 30/04/2026
Rif. Agenzia: 26/046 S.M. Nascente
Rif. Agenzia 26/046 S.M. Nascente

Kers Immobiliare

Viale Monte Nero, 11 - Milano
0276390022
Richiedi Info dal form:
Accetto l'Informativa Privacy


Condividi

Kers Immobiliare

Viale Monte Nero, 11 - Milano

Bilocale in Affitto a Milano, 1'450€, 90 m²

Chiama
Contatta