Trilocale in Vendita a Monza, 313'400€, 105 m²

Locali: 3
Bagni: 2
Piano: 1°
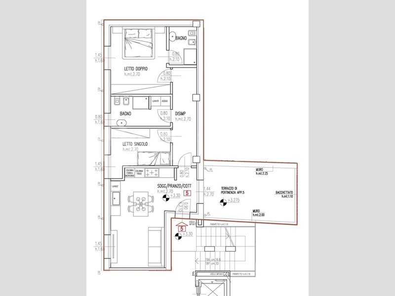
Monza San Fruttuoso "I Giardini della Magnolia" Situato in una zona residenziale a pochi passi dal centro di San Fruttuoso, servito da negozi di vicinato, supermarket, scuole e a pochi minuti dalla futura fermata Metropolitana Bettola, proponiamo Nuova Costruzione in Classe energetica A1. L' edificio si sviluppa attorno ad grazioso spazio verde condominiale caratterizzato dalla presenza di una magnolia. Proponiamo appartamenti di diverse metrature, da 1 a 4 locali con possibilità di giardini privati, balconi o terrazzi e ampia disponibilità di autorimesse al piano interrato. La costruzione è caratterizzata da murature ad alto isolamento termo-acustico, serramenti in PVC a taglio termico basso emissivi, impianto centralizzato con pompa di calore aria-acqua per riscaldamento a pavimento, raffrescamento con split e acqua calda sanitaria. Ogni appartamento è dotato di contabilizzazione dei consumi. Appartamento n. 5 - trilocale al primo piano, composto da ingresso che si apre sulla zona living con cucina a vista e affaccio su ampio terrazzo. La zona notte comprende una camera padronale con bagno en suite, oltre a una seconda cameretta e a un bagno disimpegnato. Capitolato di qualità a scelta degli acquirenti. Consegna Giugno 2027 Grimaldi Immobiliare Monza Centro Via Vittorio Emanuele II, 44 - Monza www.grimaldimonza.org YouTube: GrimaldiMonza info@grimaldimonza.org Tel. 039 9253140 WhatsApp: 351 6208262

Condizioni economiche

Contratto: Vendita
Prezzo: 313'400€

Informazioni principali

Tipologia: Trilocale
Città: Monza
Superficie: 105 m²
N° locali: 3
N° bagni: 2
Piano:

Efficenza energetica

Classe energetica: 2015-A1
Ipe: 79.19 kwm2
Anno di costruzione: 0

Dati inserzione

ID Offrocasa.com: 11049307
Data inserimento: 28/04/2026
Rif. Agenzia: Cod. rif 3304749VRG
Rif. Agenzia Cod. rif 3304749VRG

Grimaldi Immobiliare

Via Vittorio Emanuele II 44 - Monza (Monza-Brianza)
039/9253140
Richiedi Info dal form:
Accetto l'Informativa Privacy


Condividi

Grimaldi Immobiliare

Via Vittorio Emanuele II 44 - Monza (Monza-Brianza)

Trilocale in Vendita a Monza, 313'400€, 105 m²

Chiama
Contatta