Monolocale in Affitto a Roma, 1'450€, 38 m², arredato

Locali: 1
Bagni: 1
Camere: 1
Piano: Terra
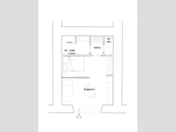
GABETTI AGENZIA CORSO ITALIA Piazza Ungheria, adiacente Luiss, proponiamo la locazione di un delizioso monolocale appena ristrutturato e mai abitato, composto da soggiorno/camera, angolo cottura, bagno e ripostiglio/lavanderia. Riscaldamento autonomo con termoconvettori aria calda/aria fredda, impianto elettrico e norma, totalmente arredato. Contratto abitativo con cedolare secca. Per appuntamenti ed informazioni: Agenzia Gabetti Corso Italia 06 8413461 - rmcorsoitalia@gabetti.it I nostri uffici si trovano in Corso d'Italia 93 - 00198 Roma, e sono aperti dal lunedì al venerdì dalle 9 alle 13 e dalle 15.30 alle 19.30 - il sabato dalle 9 alle 13. Ci occupiamo da anni della vendita e della locazione di tutti le tipologie di immobili. La Gabetti con oltre settant'anni di attività è l'unico Full Service Provider per il sistema immobiliare. Offriamo consulenza in tutti i settori Real Estate per soddisfare al meglio i nostri clienti. Il nostro sistema organizzativo si fonda sulle migliori competenze del mercato immobiliare e siamo presenti in tutta Italia con la nostra rete di oltre 700 agenzie.

Condizioni economiche

Contratto: Affitto
Prezzo: 1'450€
Arredato: Si
Spese condominiali: 40€
Libero: Si

Informazioni principali

Tipologia: Monolocale
Città: Roma
Superficie: 38 m²
N° locali: 1
N° bagni: 1
N° Camere: 1
Piano: Terra
Cucina: Angolo Cottura

Efficenza energetica

Classe energetica: 2015-F
Ipe: 175.00 kwm2
Climatizzatore: Si
Anno di costruzione: 1920
Riscaldamento: autonomo

Dati inserzione

ID Offrocasa.com: 11046303
Data inserimento: 23/04/2026
Rif. Agenzia: Cod. rif 3311745ARG
Rif. Agenzia Cod. rif 3311745ARG

Gabetti

corso d'Italia 93 - Roma
06/8413461
Richiedi Info dal form:
Accetto l'Informativa Privacy


Condividi

Gabetti

corso d'Italia 93 - Roma

Monolocale in Affitto a Roma, 1'450€, 38 m², arredato

Chiama
Contatta