Trilocale in Vendita a Pistoia, 90'000€, 60 m², arredato

Locali: 3
Bagni: 1
Camere: 2
Piano: piano terra
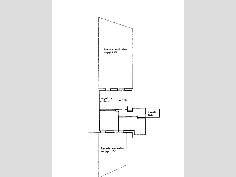
?️ Doganaccia: Il Tuo Rifugio sulle Piste con Ampio Giardino Privato Vivere la montagna a 360°, dimenticando l'auto e godendosi la neve d'inverno e il fresco d'estate. Proponiamo in vendita un accogliente appartamento di circa 60 mq, situato al piano terra di un curato complesso condominiale di sole 9 unità, in una posizione davvero strategica. ? La Posizione Situato nel cuore della Doganaccia (PT), l'immobile si trova a brevissima distanza dalle piste da sci e dai principali servizi del borgo, tutti comodamente raggiungibili a piedi. ? Gli Spazi Esterni: Un Valore Aggiunto La proprietà vanta una generosa area esterna di circa 100 mq, un vero lusso per la zona, suddivisa in: • Resede anteriore piastrellato: ideale per pranzi all'aperto. • Giardino posteriore: perfetto per il relax o per far giocare i bambini in sicurezza. • Ingresso indipendente: garantito dal doppio affaccio esterno. ?️ Interni Accoglienti e Funzionali L'appartamento è ben distribuito e studiato per ottimizzare ogni spazio: • Zona Giorno: Ampio e luminoso soggiorno con angolo cottura, il cuore della casa. • Zona Notte: Due camere da letto confortevoli. • Disimpegno: Corridoio attrezzato con un pratico armadio a muro a 6 ante, ideale per l'attrezzatura sportiva e il cambio stagione. • Bagno: Funzionale e compatto. ⚙️ Caratteristiche e Comfort • Riscaldamento: Atmosfera garantita dal camino, supportato da una pratica stufa a pellet e stufette elettriche a parete per una gestione flessibile del calore. • Condominio: Gestione condominiale presente per la cura delle parti comuni. • Arredi: Possibilità di includere il mobilio nella trattativa. ? Prezzo: € 90.000

Condizioni economiche

Contratto: Vendita
Prezzo: 90'000€
Arredato: si

Informazioni principali

Tipologia: Trilocale
Città: Pistoia
Superficie: 60 m²
N° locali: 3
N° bagni: 1
N° Camere: 2
Piano: piano terra
Giardino: privato

Efficenza energetica

Classe energetica: In attesa di certificazione
Ristrutturato: si

Dati inserzione

ID Offrocasa.com: 11044088
Data inserimento: 22/04/2026
Rif. Agenzia: 1407098/1405/3V-19V
Rif. Agenzia 1407098/1405/3V-19V

LA BUSSOLA IMMOBILIARE

Via Via Turati,, 5 - Pisa
3485582222
Richiedi Info dal form:
Accetto l'Informativa Privacy


Condividi

LA BUSSOLA IMMOBILIARE

Via Via Turati,, 5 - Pisa

Trilocale in Vendita a Pistoia, 90'000€, 60 m², arredato

Chiama
Contatta