Trilocale in Vendita a Roma, 195'000€, 64 m²

Locali: 3
Bagni: 1
Camere: 2
Piano: 1°
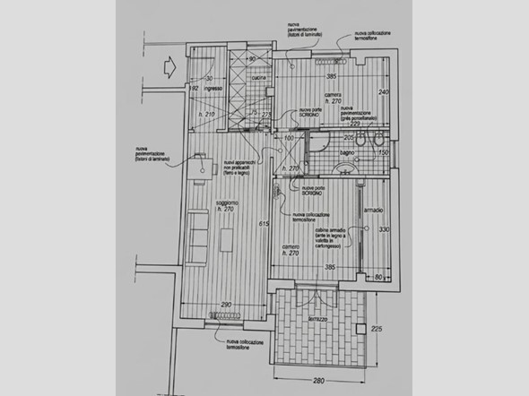
In zona La Storta, in Via Giuseppe Calenzuoli 3, proponiamo in vendita un trilocale situato al primo piano di una palazzina dotata di ascensore. L'immobile si apre su un ingresso privato che accompagna alla zona giorno, composta da un luminoso soggiorno con angolo cottura. La zona notte offre una spaziosa camera matrimoniale con comoda cabina armadio, una seconda camera versatile e un bagno finestrato. A completare gli ambienti un balcone. Completa la proprietà una cantina di proprietà. Soluzione ideale per chi cerca funzionalità e comfort in una zona ben collegata lontana dal caos cittadino.

Condizioni economiche

Contratto: Vendita
Prezzo: 195'000€
Spese condominiali: 75€

Informazioni principali

Tipologia: Trilocale
Città: Roma
Superficie: 64 m²
N° locali: 3
N° bagni: 1
N° Camere: 2
Piano:
Cucina: Angolo Cottura

Efficenza energetica

Classe energetica:
Anno di costruzione: 0
Riscaldamento: autonomo

Caratteristiche

Cantina: Si
Ascensore: Si

Dati inserzione

ID Offrocasa.com: 11042323
Data inserimento: 19/04/2026
Rif. Agenzia: Cod. rif 3311012VRG
Rif. Agenzia Cod. rif 3311012VRG

Professionecasa

Via Cassia 528 - Roma
Richiedi Info dal form:
Accetto l'Informativa Privacy


Condividi

Professionecasa

Via Cassia 528 - Roma

Trilocale in Vendita a Roma, 195'000€, 64 m²

Contatta