Trilocale in Affitto a Firenze, zona Duomo, 1'500€, 50 m², arredato

Locali: 3
Camere: 1
Piano: 2
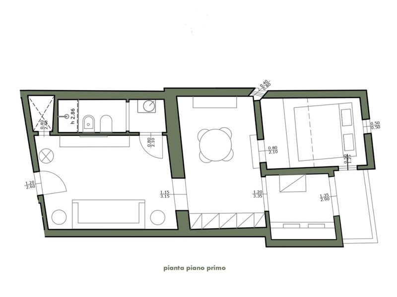
a26149 - CENTRO STORICO/DUOMO-VIA GHIBELLINA: Nel cuore del centro storico nei pressi di Piazza Santa Croce proponiamo in affitto luminoso appartamento (50 mq c.a.) situato al secondo piano composto da: ingresso, soggiorno, angolo cottura, camera da letto matrimoniale con servizio oltre pratico balcone. L'immobile di recente ristrutturazione, si presenta in ottime condizioni generali, gode di doppia esposizione ed è dotate di finiture di pregio come parquet ed infissi doppi. Termo singolo Classe Energetica G. Contratto proposto transitorio 12/18 mesi. Richieste massime garanzie. LIBERO DAL 1 MAGGIO 2026

Condizioni economiche

Contratto: Affitto
Prezzo: 1'500€
Arredato: Si
Spese condominiali: 150€

Informazioni principali

Tipologia: Trilocale
Città: Firenze
Zona: Duomo
Superficie: 50 m²
N° locali: 3
N° Camere: 1
Piano: 2
N° balconi: 1
Cucina: Angolo cottura

Efficenza energetica

Classe energetica: G
Anno di costruzione: 1900
Condizioni stabile: Ottimo
Riscaldamento: Autonomo

Dati inserzione

ID Offrocasa.com: 11041372
Data inserimento: 17/04/2026
Rif. Agenzia: a26149
Rif. Agenzia a26149

Immobiliare Belvedere

Via Il Prato 61r - Firenze
055.0880658
Richiedi Info dal form:
Accetto l'Informativa Privacy


Condividi

Immobiliare Belvedere

Via Il Prato 61r - Firenze

Trilocale in Affitto a Firenze, zona Duomo, 1'500€, 50 m², arredato

Chiama
Contatta