Quadrilocale in Vendita a Torino, 320'000€, 136 m², con Box

Locali: 4
Bagni: 2
Camere: 2
Piano: 1°
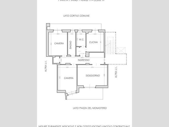
L'Agenzia Gabetti Parella propone in vendita un ampio quadrilocale situato nel quartiere Parella, precisamente in Piazza del Monastero angolo Corso Francia, in posizione comoda a tutti i servizi Composto da: ampio ingresso, sala con accesso a terrazzino vivibile con affaccio sulla piazzetta, cucina abitabile con balcone, due camere da letto, ripostiglio e doppi servizi finestrati. Completano la proprietà una cantina e una soffitta. Da aggiungere al prezzo dell'appartamento vi è un box auto singolo situato al piano sottostante l'immobile a ?. 30.000,00. ASCENSORE: Si ANNO DI COSTRUZIONE: anni 70 STATO IMMOBILE: da ristrutturare ESPOSIZIONE: Est/Ovest CLASSE ENERGETICA: in attesa di certificazione SERVIZI: A pochi passi dal mercato Rionale di Corso Brunelleschi, Farmacia, Bar, Pasticceria, Negozi di vario genere e Stazione Metro POZZO STRADA SPESE CONDOMINIALI: in attesa di documentazione SPESE DI RISCALDAMENTO: in attesa di documentazione RENDITA CATASTALE: ? 1.502,89 *Informazioni puramente indicative e non costituiscono vincolo contrattuale* La nostra agenzia collabora da diversi anni con professionisti che vi seguiranno e aiuteranno nel difficile e complicato POST ACQUISTO: geometra per tutte le pratiche necessarie in comune e catasto; architetto con impresa di ristrutturazione per redistribuzione e miglioramento degli spazi interni; arredatrice d'interni che vi seguirà e consigliera' tra una molteplicità di mobili e elementi. Ci trovate nel nostro ufficio in CORSO FRANCIA 290, VIA SALBERTRAND 9/B, siamo disponibili per valutazioni gratuite e consulenze immobiliari. Nel nostro ufficio troverete anche un consulente bancario che vi aiuterà a individuare il mutuo perfetto e ideale per le vostre esigenze.

Condizioni economiche

Contratto: Vendita
Prezzo: 320'000€
Arredato: No
Libero: Si

Informazioni principali

Tipologia: Quadrilocale
Città: Torino
Superficie: 136 m²
N° locali: 4
N° bagni: 2
N° Camere: 2
Piano:
Box: Si
Cucina: Abitabile

Efficenza energetica

Classe energetica:
Anno di costruzione: 1970
Riscaldamento: centralizzato

Caratteristiche

Cantina: Si
Ascensore: Si
Videocitofono: Si

Dati inserzione

ID Offrocasa.com: 11039652
Data inserimento: 15/04/2026
Rif. Agenzia: Cod. rif 3309703VRG
Rif. Agenzia Cod. rif 3309703VRG

Gabetti

Corso Francia 290 - Torino
011/19585551
Richiedi Info dal form:
Accetto l'Informativa Privacy


Condividi

Gabetti

Corso Francia 290 - Torino

Quadrilocale in Vendita a Torino, 320'000€, 136 m², con Box

Chiama
Contatta