Quadrilocale in Vendita a Roma, 899'000€, 159 m²

Locali: 4
Bagni: 3
Camere: 2
Piano: 1°
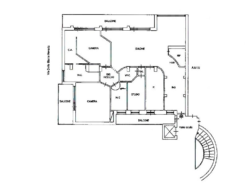
APPARTAMENTO RAFFINATO IN CONTESTO ESCLUSIVO NEL VERDE All'interno di un contesto signorile ed esclusivo, immerso nel verde curato del giardino condominiale, proponiamo la vendita di un elegante appartamento completamente ristrutturato, inserito in una palazzina di soli due piani che garantisce sicurezza, silenziosità e un'elevata qualità abitativa. La proprietà si distingue per l'ampiezza degli ambienti, l'eccellente luminosità e le finiture di pregio, rappresentando una soluzione ideale per chi è alla ricerca di comfort e rappresentanza. L'immobile si sviluppa con una distribuzione interna razionale e ben organizzata. La zona giorno è composta da un ampio salone valorizzato dalla favorevole esposizione ad ovest e dalla vista aperta sul verde circostante. La cucina abitabile è adiacente ad una stanza studio e ad un bagno. Un raffinato disimpegno conduce alla zona notte, composta da due camere matrimoniali e doppi servizi, di cui uno nella camera padronale, dotata anche di cabina armadio. Tutti gli ambienti hanno accesso diretto agli spazi esterni grazie alla presenza di tre balconi. L'appartamento è impreziosito da una pregiata pavimentazione in parquet in tek Burma, elemento che conferisce calore e prestigio agli ambienti. Tra le dotazioni troviamo un sistema di climatizzazione canalizzata con pompa di calore, infissi in legno con doppi vetri e riscaldamento autonomo tutti elementi che assicurano un elevato livello di comfort e una gestione efficiente dei consumi durante tutto l'anno. Il doppio ingresso rappresenta un ulteriore valore aggiunto, offrendo la possibilità di suddividere l'immobile in due unità indipendenti. Inoltre, vi è la possibilità di installare pannelli fotovoltaici sul lastrico solare con interessanti prospettive in termini di sostenibilità energetica. Completa la proprietà una cantina di pertinenza dotata di porta blindata ed inferriate. A corredo della proprietà sono presenti un posto auto assegnato, servito da ascensore nella rimessa comune coperta, e una cantina condominiale a disposizione dei residenti. La posizione è particolarmente strategica: a pochi passi dal Laghetto dell'EUR e nelle immediate vicinanze delle fermate della metro B Laurentina ed Eur Fermi, oltre che di tutti i principali servizi e dei collegamenti verso il centro città e il G.R.A. Una soluzione abitativa elegante, luminosa e riservata, perfetta per chi desidera vivere in un contesto esclusivo senza rinunciare alla comodità della città. Prezzo richiesto: ? 899.000,00 Classe energetica C - Ipe 157.36 kWh/m² anno. Per maggiori informazioni o per prenotare una visita, contattare il numero 0681150218.

Condizioni economiche

Contratto: Vendita
Prezzo: 899'000€
Arredato: No
Spese condominiali: 220€
Libero: Si

Informazioni principali

Tipologia: Quadrilocale
Città: Roma
Superficie: 159 m²
N° locali: 4
N° bagni: 3
N° Camere: 2
Piano:
Posto auto: Si
Cucina: Abitabile
Giardino: Comune

Efficenza energetica

Classe energetica: 2015-C
Ipe: 157.36 kwm2
Climatizzatore: Si
Anno di costruzione: 1987
Riscaldamento: autonomo

Caratteristiche

Cantina: Si
Ascensore: Si

Dati inserzione

ID Offrocasa.com: 11038924
Data inserimento: 14/04/2026
Rif. Agenzia: VS06/26VRG
Rif. Agenzia VS06/26VRG

Soluzioni Immobiliari srl

Via Alessio Baldovinetti 97 - Roma
0681150214
Richiedi Info dal form:
Accetto l'Informativa Privacy


Condividi

Soluzioni Immobiliari srl

Via Alessio Baldovinetti 97 - Roma

Quadrilocale in Vendita a Roma, 899'000€, 159 m²

Chiama
Contatta