Appartamento in Vendita a Macerata, 98'000€, 85 m², arredato

Locali: 5
Bagni: 1
Camere: 3
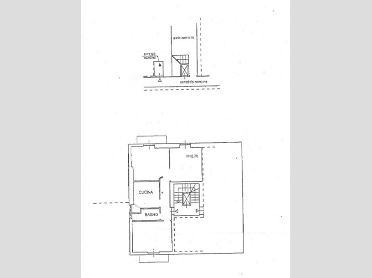
Rif:3296748 ZONA SEMI-CENTRALE, IDEALE AD USO INVESTIMENTO. Luminoso appartamento di 85mq in buone condizioni in zona semi-centrale a Macerata, locato a studenti universitari. L'Agenzia Immobiliare Gabetti di Macerata, propone in vendita esclusiva, luminoso e ventilato appartamento situato all'ultimo piano di una palazzina con ascensore a Macerata. Con una superficie di 85 mq, questo appartamento offre un'opportunità di investimento grazie alla sua posizione strategica vicino a numerosi servizi e alla sua vicinanza a istituti scolastici e universitari. L'immobile dispone di una cucina funzionale, un bagno con doccia e tre ampie camere da letto, di cui due dotate di condizionatore e balcone privato, una delle quali vanta anche una comoda e piccola cabina armadio. In alternativa, a seconda delle proprie esigenze, si può adibire una camera a soggiorno. La disposizione degli spazi interni rende questo appartamento ideale per una famiglia o per studenti che desiderano vivere in una zona comoda e servita. L'appartamento è dotato di pavimentazione in parquet in tutte le stanze, tranne nel bagno e sono presenti infissi in legno doppio vetro. A completare la proprietà troviamo una piccola cantina al piano terra. Classe energetica G. L'appartamento è abitabile ed attualmente è locato a studenti universitari. Possibilità di parcheggio sotto il condominio o nelle vie adiacenti. La zona in cui si trova l'appartamento è molto frequentata, grazie alla presenza di diverse attività commerciali come bar, supermercati e molto altro. Inoltre, la presenza di scuole, università e fermate dell'autobus rendono la zona particolarmente attrattiva per chi cerca comodità e praticità nella vita quotidiana. Questo appartamento rappresenta un'opportunità per chi desidera un immobile ben posizionato, luminoso e confortevole, ideale sia per chi cerca una soluzione abitativa che per chi vuole investire nel mercato immobiliare. Non lasciarti sfuggire questa occasione, contattaci per organizzare una visita allo 0733-265081, o inviaci una mail a macerata@gabetti.it, o vienici a trovare presso la nostra Agenzia in Via G. Carducci n.17 a Macerata.

Condizioni economiche

Contratto: Vendita
Prezzo: 98'000€
Arredato: Si

Informazioni principali

Tipologia: Appartamento
Città: Macerata
Superficie: 85 m²
N° locali: 5
N° bagni: 1
N° Camere: 3
Cucina: Abitabile

Efficenza energetica

Classe energetica:
Ipe: 0.00 kwm2
Anno di costruzione: 0

Dati inserzione

ID Offrocasa.com: 11036834
Data inserimento: 10/04/2026
Rif. Agenzia: Cod. rif 3296748VRG
Rif. Agenzia Cod. rif 3296748VRG

Gabetti

via Carducci, 17 - Macerata
0733/265081
Richiedi Info dal form:
Accetto l'Informativa Privacy


Condividi

Gabetti

via Carducci, 17 - Macerata

Appartamento in Vendita a Macerata, 98'000€, 85 m², arredato

Chiama
Contatta