Bilocale in Vendita a Cassino, 60'000€, 52 m²

Locali: 2
Bagni: 1
Piano: Rialzato
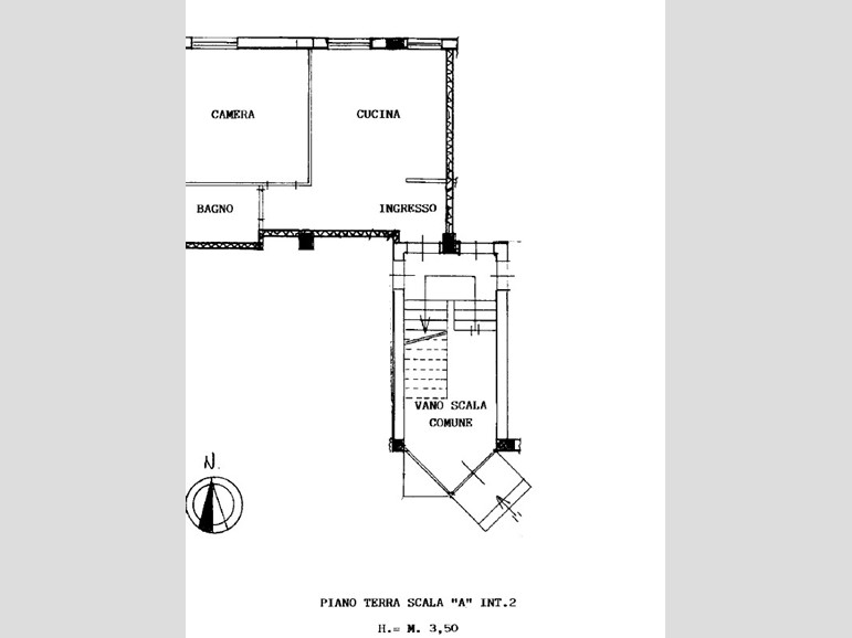
Cassino, Via Casilina Sud, nel complesso abitativo "Le Residenze", proponiamo in esclusiva la vendita di appartamento al piano rialzato composto da: ingresso in soggiorno con cucina a vista, camera matrimoniale e bagno.

Condizioni economiche

Contratto: Vendita
Prezzo: 60'000€

Informazioni principali

Tipologia: Bilocale
Città: Cassino
Superficie: 52 m²
N° locali: 2
N° bagni: 1
Piano: Rialzato

Efficenza energetica

Classe energetica:
Anno di costruzione: 0

Dati inserzione

ID Offrocasa.com: 11036758
Data inserimento: 10/04/2026
Rif. Agenzia: Cod. rif 3308751VRG
Rif. Agenzia Cod. rif 3308751VRG

Professionecasa

viale dante 1/3 - Cassino (Frosinone)
0776/23316
Richiedi Info dal form:
Accetto l'Informativa Privacy


Condividi

Professionecasa

viale dante 1/3 - Cassino (Frosinone)

Bilocale in Vendita a Cassino, 60'000€, 52 m²

Chiama
Contatta