Appartamento in Vendita a Cecina, 298'000€, 210 m²

Locali: 8
Bagni: 3
Camere: 5
Piano: 2°
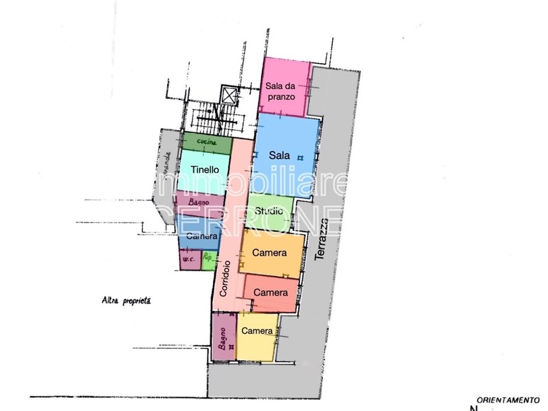
Nel cuore di Cecina, proponiamo in vendita un ampio e luminosissimo appartamento posto al secondo piano di una palazzina servita da ascensore. L’immobile si sviluppa interamente su un unico livello per una superficie di circa 210 mq, con ambienti generosi e ben distribuiti che garantiscono comfort e vivibilità in ogni stagione. La zona giorno accoglie con una splendida sala impreziosita da grandi vetrate che regalano luce naturale per tutta la giornata, affiancata da una sala da pranzo e da una cucina con accesso diretto a una pratica veranda e al tinello: spazi perfetti per la vita quotidiana e per ricevere ospiti in totale comodità. Un comodo corridoio conduce alla zona notte, composta da quattro camere da letto, di cui una con bagno privato, uno studio, un ripostiglio e altri due bagni finestrati con box doccia. Il vero punto di forza della proprietà è la magnifica terrazza di circa 150 mq, esposta a sud/est e sviluppata su due lati dell’appartamento: uno spazio esterno raro e prezioso, attrezzato con tende solari, ideale per momenti di relax all’aria aperta, pranzi e cene in compagnia o per creare una vera zona living outdoor. Completa la proprietà un comodo posto auto privato. L’appartamento si distingue per la sua eccezionale luminosità, valorizzata dalle ampie superfici vetrate e dai pavimenti in parquet che rendono gli ambienti caldi e accoglienti. È dotato di riscaldamento centralizzato a metano e di climatizzazione caldo/freddo; ogni termosifone è provvisto di termostato per la gestione autonoma dei consumi, garantendo efficienza e risparmio. La posizione è strategica: a pochi passi dal centro di Cecina, con tutti i principali servizi raggiungibili comodamente a piedi, e a soli 2 km dal mare. Grazie alle sue dimensioni importanti, agli spazi esterni esclusivi e alla completezza dei comfort, questa soluzione è perfetta sia come abitazione principale per famiglie numerose, sia come casa vacanze di pregio vicino alla costa.

Condizioni economiche

Contratto: Vendita
Prezzo: 298'000€

Informazioni principali

Tipologia: Appartamento
Città: Cecina
Superficie: 210 m²
N° locali: 8
N° bagni: 3
N° Camere: 5
Piano:
Posto auto: 1
Esposizione: sud, ovest, est

Efficenza energetica

Classe energetica: In attesa di certificazione
Ristrutturato: si

Caratteristiche

Ascensore: si

Dati inserzione

ID Offrocasa.com: 11036332
Data inserimento: 10/04/2026
Rif. Agenzia: 1406180/1101/A419
Rif. Agenzia 1406180/1101/A419

CERRONE Immobiliare

Largo Largo Cairoli,, 15 - Cecina (Livorno)
0586620397
Richiedi Info dal form:
Accetto l'Informativa Privacy


Condividi

CERRONE Immobiliare

Largo Largo Cairoli,, 15 - Cecina (Livorno)

Appartamento in Vendita a Cecina, 298'000€, 210 m²

Chiama
Contatta