Trilocale in Vendita a Tortoreto, 150'000€, 70 m²

Locali: 3
Bagni: 1
Camere: 2
Piano: Terra
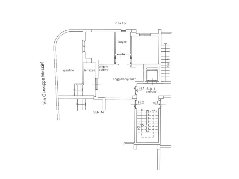
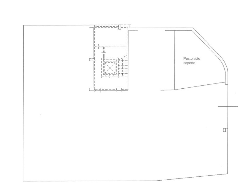
A poca distanza dal mare, in un contesto residenziale, proponiamo in vendita splendido appartamento situato al piano terra rialzato, in una palazzina edificata nei primi anni duemila. Internamente l'immobile sviluppa una superficie di 60mq ed è così composto: ingresso su un luminoso soggiorno con cucina a vista, tramite il soggiorno accediamo al terrazzo verandato dove troviamo un angolo lavanderia, mediante pochi gradini scendiamo nell'ampio giardino attrezzato che, grazie alla sua fresca esposizione a Nord, ci permette di godere della bella stagione in compagnia. La zona notte è composta da due camere matrimoniali ed un bagno finestrato con doccia; il condizionatore posizionato strategicamente nel disimpegno permette di rinfrescare tutta la zona notte nelle serate più calde. Completa la proprietà un indispensabile e comodo posto auto coperto. Data la sua vicinanza al mare ed ai principali servizi, questo immobile è l'ideale per chi sta cercando una casa da vivere nella bella stagione o come un'ottimo investimento da mettere a rendita. Non perdere l'opportunità di acquistare questo appartamento nuovo, libero da vincoli di occupazione, e iniziare a godere della qualità della vita che offre. Contattaci per ulteriori informazioni e per organizzare una visita. Ci trovate in Via Carducci 150 a Tortoreto (TE). Potete contattarci ai numeri: Fisso: 08611886204 oppure tramite WhatsApp al 3793691472, registrando il nostro numero potrete accedere al catalogo delle nostre migliori proposte e ricevere aggiornamenti. "Gabetti. E sei già a casa", per gli amici, per la famiglia o da condividere con la persona con cui abbiamo deciso di passare la nostra vita.

Condizioni economiche

Contratto: Vendita
Prezzo: 150'000€
Arredato: No
Spese condominiali: 50€
Libero: Si

Informazioni principali

Tipologia: Trilocale
Città: Tortoreto
Superficie: 70 m²
N° locali: 3
N° bagni: 1
N° Camere: 2
Piano: Terra
Posto auto: Si
Cucina: Angolo Cottura
Giardino: Privato

Efficenza energetica

Classe energetica: 2015-F
Ipe: 130.00 kwm2
Climatizzatore: Si
Anno di costruzione: 2020
Riscaldamento: autonomo

Caratteristiche

Ascensore: Si
Videocitofono: Si

Dati inserzione

ID Offrocasa.com: 11035518
Data inserimento: 09/04/2026
Rif. Agenzia: Cod. rif 3306452VRG
Rif. Agenzia Cod. rif 3306452VRG

Gabetti

Via Nazionale 104 - Tortoreto (Teramo)
08611864850
Richiedi Info dal form:
Accetto l'Informativa Privacy


Condividi

Gabetti

Via Nazionale 104 - Tortoreto (Teramo)

Trilocale in Vendita a Tortoreto, 150'000€, 70 m²

Chiama
Contatta