Trilocale in Vendita a Fiumicino, 199'000€, 78 m², con Box

Locali: 3
Bagni: 2
Camere: 2
Piano: 3°
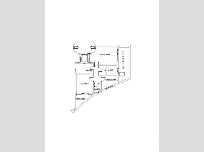
** VENDUTO* Fiumicino Parco Leonardo, complesso Le Pleiadi, in palazzina con ascensore, appartamento al 3° piano con affaccio interno verso il giardino condominiale e le fontane, buono stato, composto da ingresso, soggiorno, cucinotto, camera matr., studio (utilizzabile come cameretta), disimpegno, 2 bagni ( entrambi esterni, 1 con finestra, 1 cieco), 2 balconi e box auto mq 15. Termoautonomo, climatizzazione, portone blindato, infissi in legno con doppi vetri, vasca idromassaggio, tende da sole, parquet. euro 199.000,00 Per informazioni e appuntamenti contattare l'agenzia Gabetti Franchising di Fiumicino, Via Fiumara 26d -- tel. 06/6584601- WAPP 351/5106022 - - dal lunedì al venerdì 9.00-13.00 / 15.30-19.30 e sabato mattina 9.00-13.00. www.gabetti.it Parco Leonardo, vicinanza aeroporto di Roma "Leonardo Da Vinci", Commercity e Nuova Fiera di Roma, Zona in forte espansione residenziale e commerciale, ben servita (vicinanza centro commerciale "Parco Leonardo" e Market "Da Vinci", scuole d'infanzia e primarie), e ottimamente collegata (treno metropolitano Fm1 tratta Fiumicino aeroporto-Roma-Orte, e autostrada A24 Roma Fiumicino Civitavecchia, oltre bus navetta).

Condizioni economiche

Contratto: Vendita
Prezzo: 199'000€

Informazioni principali

Tipologia: Trilocale
Città: Fiumicino
Superficie: 78 m²
N° locali: 3
N° bagni: 2
N° Camere: 2
Piano:
Box: Si
Cucina: Abitabile
Giardino: Comune

Efficenza energetica

Classe energetica: 2015-F
Ipe: 123.00 kwm2
Climatizzatore: Si
Anno di costruzione: 2003
Riscaldamento: autonomo

Caratteristiche

Ascensore: Si

Dati inserzione

ID Offrocasa.com: 11035337
Data inserimento: 09/04/2026
Rif. Agenzia: Stoccolma199VRG
Rif. Agenzia Stoccolma199VRG

Gabetti

via Fiumara 24/A - Fiumicino (Roma)
06/6584601
Richiedi Info dal form:
Accetto l'Informativa Privacy


Condividi

Gabetti

via Fiumara 24/A - Fiumicino (Roma)

Trilocale in Vendita a Fiumicino, 199'000€, 78 m², con Box

Chiama
Contatta